Продавам първи етаж от къща в гр. Мездра, с площ от 90 кв.м, заедно с приземен етаж (40 кв.м),двор с гараж и прилежащи постройки.
Разпределение: кухня с трапезария и всекидневна, три спални, две тераси и тоалетна.
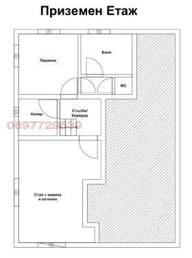
Приземният етаж включва мокро/перално помещение, отделна баня и тоалетна, склад, котелно и голяма стая с камина.
Имота разполага със следните акценти: 
- близо до центъра, срещу съдебната палата;
- самостоятелен вход, вътрешно стълбище;
- локално отопление с котле дърва или на газ;
- естествена дървена настилка;
- качествена немска дървена дограма;
- допълнително складово пространство над стълбището.
За оглед и повече информация на посоченият телефон.
        
        
      
     
         
            






