Продавам етаж от къща в центъра на гр. Шумен,
Намиращ се в сграда със смесено предназначение /офисна и жилищна част/ на трети етаж /втори жилищен/, състоящ се от входно преддверие, кухня, кабинет, дневна, спална, баня, тоалетна и три балкона с обща площ на етажа 109,2 м.кв., както и 27,36 м.кв. от идеалните части на сградата. Етажа е климатизиран, като може да бъде включен към локалното отопление на сградата на газ, като има и резервен вариант - котел на нафта.
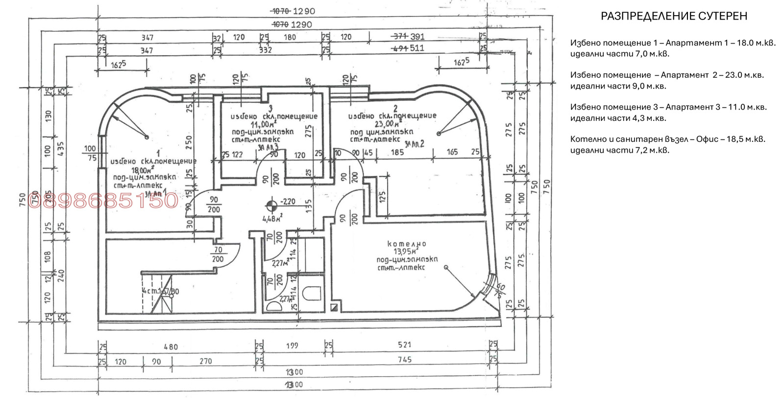
Сутеренна част състояща се от избено помещение 2 с площ 23,0 м.кв., както и 9,0 м.кв. от идеалните части на сутерена.
Към обекта са включени 27,01% от идеалните части от правото на строеж, заедно с 23,64% идеални части от земята, на които съответстват на 31,6 м.кв., в т.ч. 12,5 м.кв. персонално парко място 2.
Сградата е изградена на плоча, от тухла, алуминиева гръцка дограма с термомост, санирана, СОТ, контрол на достъпа, видеонаблюдение, оптичен интернет, с право на ползване на идеалните части от озеленен поддържан двор от 117 м.кв.
Локация в близост до училища и детски градини, както и в непосредствена близост да държавни и общински институции: община, съд, НАП, НОИ, Агенция по вписванията, нотариуси, адвокатски кантори и други.
За контакти тел.: 0898 68 51 50.







