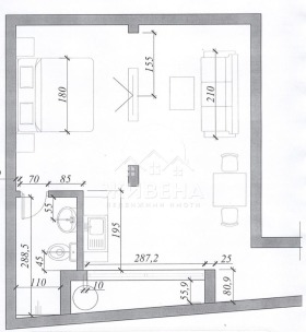
Инвестиционна компания 'Крес Инвест 2007 ЕООД', представя на Вашето внимание ателие, разположено в идеалния център на град Варна на ул. 'Никола Даскалов' 6, до 1 РПУ.
Имотът е подходящ, както за живеене , така и за развиване на различни дейности.
Има възможност за закупуване на паркоместа в закрит паркинг.
Предлагаме гъвкава схема на разсрочено плащане, съгласно етапите на строителство.
Виж всички обяви в vega_kres.bazar.bg или тук







