First Estates, powered by Keller Williams, представя: Офис в затворен комплекс Nove Homes
Комплексът се състои от 14 сгради с общо 560 апартамента и се намира само на 2 минути пешеходно разстояние от метростанция Красно село .
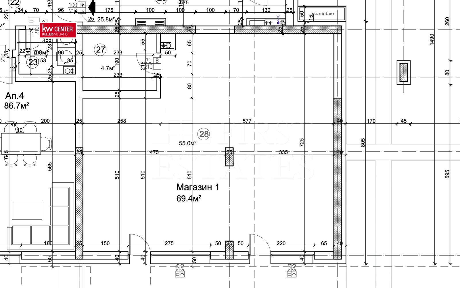
Предлагаме офис на партерен етаж с френски витрини и директен изглед към озеленените площи на комплекса, в близост до пешеходния вход. Имотът е с функционално open space разпределение и едно санитарно помещение.
? Използваема търговска площ: 69,40 м?
? Френски прозорци с отлична видимост към вътрешната част на комплекса
? Подземно паркомясто може да бъде закупена на цена от 45 000 евро
? Такса поддръжка: 0,61 euro /м?
? Отопление: централно (ТЕЦ)
За повече информация и организиране на оглед, моля свържете се с мен Николай Турлаков на телефон: 0879 33 55 56 и цитирайте код на офертата: 12779.
Цитирайте код на офертата: 2-12779






