Имоти Премиер има удоволствието да Ви представи елегантен офис, разположен в новострояща се сграда с търговска и складова част от висок клас. Бизнес центъра се намира във кв. Възраждане IV град Варна.
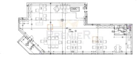
Офисът е на 3 етаж и разполага с площ от 173.86 кв.м. и височина от 3.30м, предоставяйки светло, функционално и ефективно работно пространство, подходящо както за представителство, така и за динамична офисна дейност.
Сградата се отличава със съвременен архитектурен стил, луксозно изпълнени общи части, енергийно ефективни решения и модерна фасада с естествена светлина. В цената е включено едно паркомясто. На етажа са разположени 6 офиса с общо РЗП ~1200 кв.м, всеки отделен офис е между 150 - 200 кв.м.
Основни предимства на имота:
Престижна и централна локация с отлична видимост и комуникации
Просторно помещение с възможност за индивидуално вътрешно разпределение
Панорамни прозорци и естествена осветеност
Централна климатизация и вентилация
Подходящ за ИТ компании, адвокатски кантори, архитектурни студия и други представителни дейности
Имотът предлага идеален баланс между стил, комфорт и бизнес престиж отличен избор както за развиване на собствена дейност, така и за дългосрочна инвестиция.
В непосредствена близост предстои изграждането на LIDL, което допринася за отличната бизнес перспектива на зоната.
Ние от екипа на Имоти Премиер ще ви помогнем в търсенето на мечтаното от вас жилище, като се ангажираме да получите професионални съвети, както и изрядни документи след пълна проверка на имота. При желание на клиента съдействаме за отпускане на банков кредит при най-изгодни условия. Разчитайте на нашата подкрепа до самото финализиране на сделката!
За повече информация и оглед, моля, позвънете на посочения телефон.
Код: 392689







