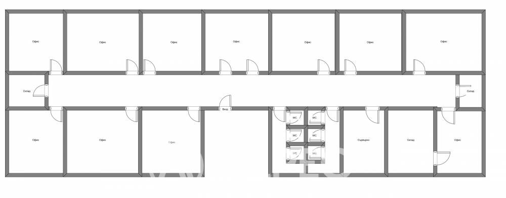
Продаваме два офиса в административна сграда на комуникативно място в близост до централната част на София. Офисите са подходящи за различни цели и преструктуриране на различни тип дейности. Разположени са на различни етажи с обща застроена площ от 950кв.м. + достъп до индивидуална покривна тераса с пллощ около 500кв.м. Към сградата има охраняем паркинг, на който към всеки етаж от сградата се падат определен брой паркоместа за паркиране.
бул. Александър Стамболийски , непосредствено до метростанция Констрантин Величков, трамваи, градски транспорт и перфектна комуникация.
Масивна административна тухлена сграда от 80те години с два асансьора и ограничен достъп.
Локация , перфектна комуникация, бърз достъп, потенциал.
Обади се сега и цитирай този код 643699







