Имоти Home Place Ви предлага:
Търговско (Бизнес) помещение с обща площ от 90м2 на партерен етаж.
Имотът се намира в близост до Окръжна болница, Медицински колеж, Териториална проектантска организация, Бизнес хотел Кампус и други важни институции.
Подходящ е за различни бизнес цели като:
- Фризьорски салон с няколко работни места
- Център за красота, масажи, солариум, сауна и други подобни
- Офис център с няколко работни помещения
- Call център
- Стоматологичен център с рецепция и няколко кабинета
- Кантори и много други дейности..
Характеристики:.
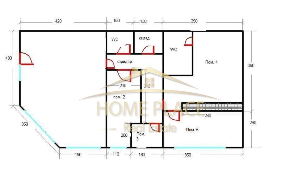
-Площ: 90 м2
-Партер
-Под гранитогрес
-Високи тавани с луминисцентно осветление
-Вътрешни стени от гипскартон, което позволява на практика всякакъв вид преустройство
-Трифазен ток
-Инсталирана аспирация
-Подведени кабели за СОТ и др.
Разпределение:
-Пет отделни помещения
-Две бани с тоалет (оборудвани)
Допълнителна информация:
-Удобен за различен вид бизнес инициативи
-Лесен достъп
-Възможност за втори вход и др.
Предлагаме:
- Безплатна юридическа консултация
- Проверка на имота за тежести
- Съдействие за банков кредит
- Съдействие при изповядване на сделката пред нотариув
- Ще бъдем до вас от началото до края на целия процес по покупко-продажба на имота
За повече информация и организиране на оглед:
Код на обява: 31729
Home Place Ние работим за Вас!







