Референтен номер: VAR-133798
Представяме помещение със статут на ателие в нова модерна сграда, разположена на минути пешеходно разстояние от Катедралата и идеалния център на Варна. Районът предлага избор от училища и детски градини, разнообразие от магазини и заведения, пазар, болница, пощенски клон и всички необходими удобства за комфортен живот. Местоположението е с бърз достъп до бул. 'Владислав Варненчик', който осигурява удобна връзка с всички части на града.
Сградата е с Акт 14.
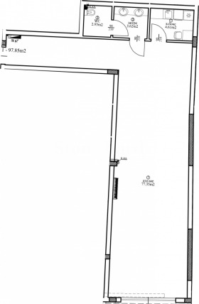
Параметри на имота
Ателието с обща площ от 110.00 кв.м е разположено на 1-ви етаж и има следното разпределение:
Зала/ ателие;
Кухненска част;
Тоалетна;
Антре.
Продава се в степен на завършеност по БДС, на шпакловка и замазка.
Комплексът е разпределен в 5 тела - покрит паркинг на 3 нива и 4 жилищни входа с налични двустайни и тристайни апартаменти за продажба, проектирани с функционални разпределения и благоприятни изложения.
Имотите са отличен избор както за лично ползване, така и за инвестиция.
Инвеститорът разполага с над 10 завършени сгради в портфолиото си и две сгради в текущ строеж. Процесът включва закупуването на терени, проектирането на сградите и изграждането им. Партнира си с водещите архитектурни бюра на град Варна, а за реализиране на строителството, разполага с необходимата строителна техника, съоръжения и инвентар, както и с квалифициран работен ресурс, воден от технически ръководители с дългогодишен опит.
Очакваме Вашето запитване
Ако желаете да организирате оглед на имот, който Ви интересува, или да посетите някой от нашите офиси, моля свържете се с нас. За да уговорите ден и час за среща или оглед, можете да се обадите на посочения в обявата телефон или да изпратите запитване чрез електронната поща. Нашият консултант ще Ви съдейства с всички необходими подробности и ще уговори удобно за Вас време.
Търсите подходящия за Вас имот?
Не се колебайте да се свържете с нас и да ни ...
За повече информация свържете се с нас и цитирайте референтния номер на имота. Моля, кажете, че сте видeли обявата в този сайт.
Референтен номер: VAR-133798
Тел: +359 889 007 010
Моб: +359 877 777 888 (WhatsApp, Viber, SMS)
Отговорен брокер:Стоунхард ПРЕМИЪР







