PORTFOLIO BEST PROPERTIES/ www.portfoliobp.com
Представяме в продажба модерен медицински център с обща площ от 625 кв.м. с отлична локация, най-добрата за кс. \'Мадика\' до болница \'Сърце и Мозък\'. Намира се в съвсем нова сграда построена през 2025година с естетична визия пред Акт 16! С широка видимост и човекопоток както и витрини с място за добра реклама.
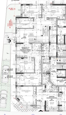
Центърът е на два етажа и е с много добро архитектурно разпределение и пространство усвоено между:
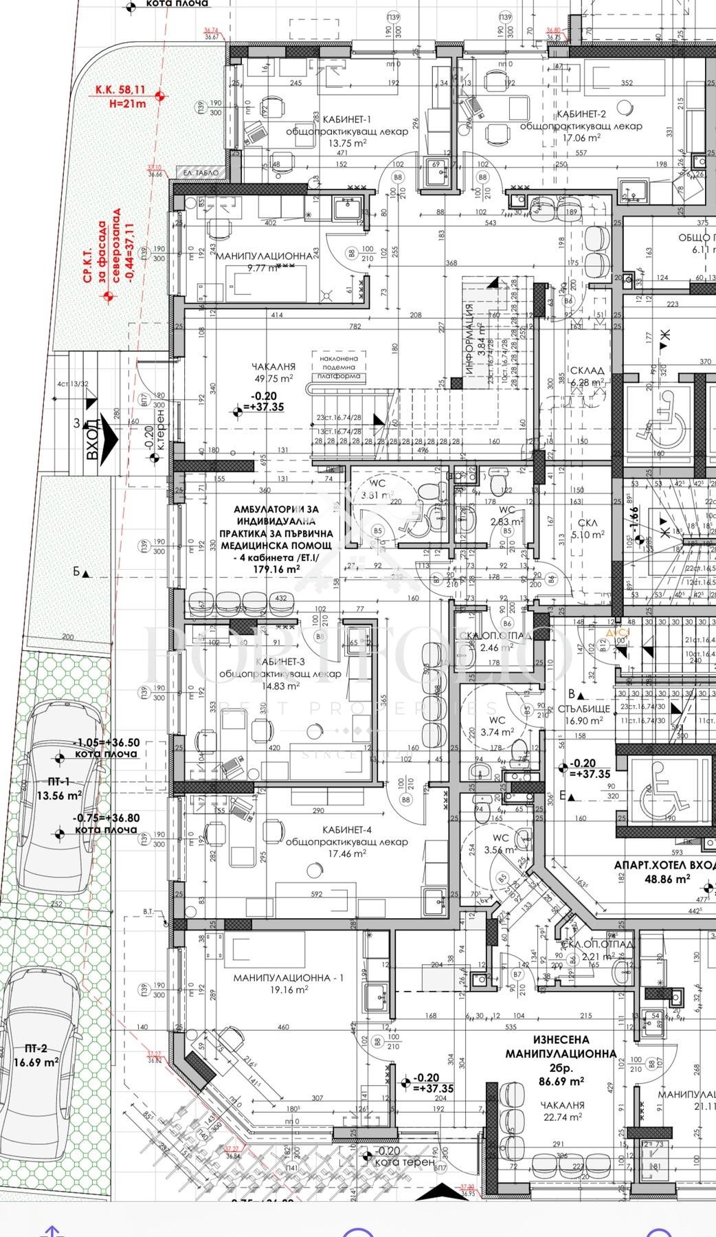
Етаж 1 - с чиста ползваема площ от 180 кв.м.
4 кабинета
1 манипулационна
1 чакалня
2 санитарни възела
1 помещение за опасен отпадък
2 склада
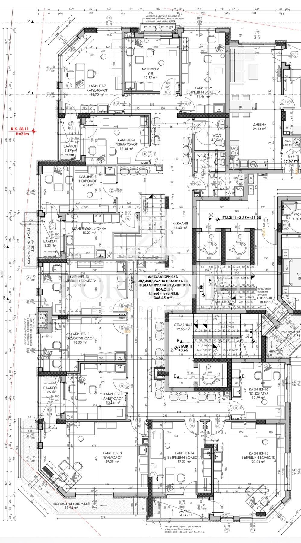
и Етаж 2 - с чиста ползваема площ от 367 кв.м.
12 кабинета
1 манипулационна
2 санитарни възела
1 помещение за опасен отпадък
4 балкона
Имотът е изключително подходящ за Медицински Център, Стоматологична поликлиника, Групова практика за първична медицинска помощ, ДЦК и др.
Уважаеми клиенти и колеги, моля свържете се с отговорния брокер по тази оферта!
Отговорен брокер: Чавдара Георгиева
Контакти +359878999664!
Можете да разгледате нашето селектирано портфолио имоти на адрес: www.portfoliobp.com
Вече 5 години сме до Вас във Вашата имотна сделка! Благодарим Ви, че ни избирате!







