Б.П. Строй предлага за продажба ОФИС, който се намира в новострояща се сграда в гр. София, ж.к. Младост 2. Сградата се намира на ул. Св. Киприян, граничи с парк 'Въртопо' и е на 5 минути пешеходно разстояние от Метростанции Александър Малинов и Акад. Ал. Теодоров Балан, ключови спирки на градски транспорт, училища, детски градини, магазини на големи хранителни вериги.
Сградата е на етап Акт 14, а довършителните работи ще бъдат изпълнени с висококачествени материали
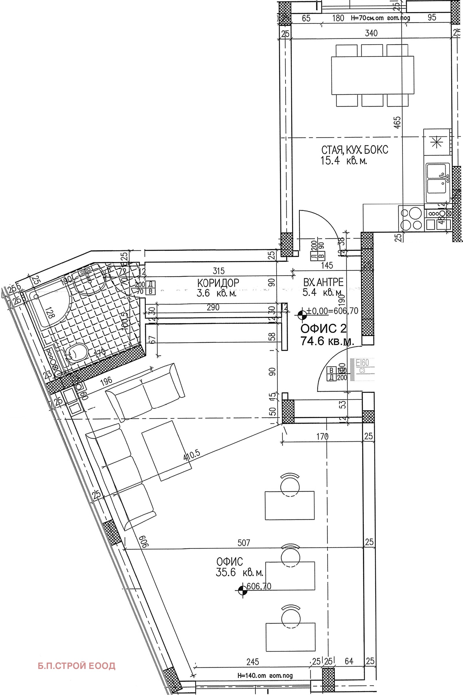
Офисът е със застроена площ от 74,6 кв.м. и се състой от входно антре, офисна част, кухненски бокс, баня с тоалетна.
Има възможност за закупуване паркомясто.
За повече информация и организиране на огледи : 0893 00 73 73 или 0883 303 123
Виж всички обяви в bpstroi.bazar.bg или тук
        
       
         
         
         
         
         
         
         
             
             
             
             
             
             
            


