Отлично местоположение, близо до паркове, магазини, училища, детски градини, спирки на градския транспорт, удобни транспортни връзки към всички райони на София.
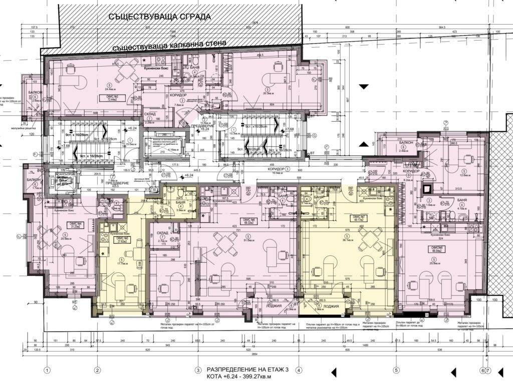
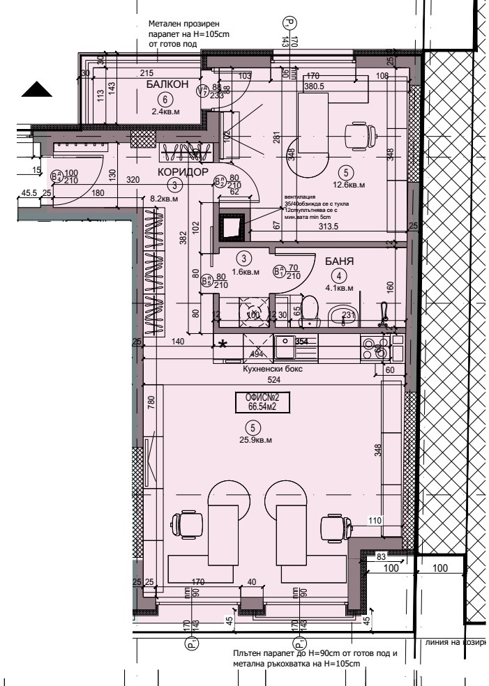
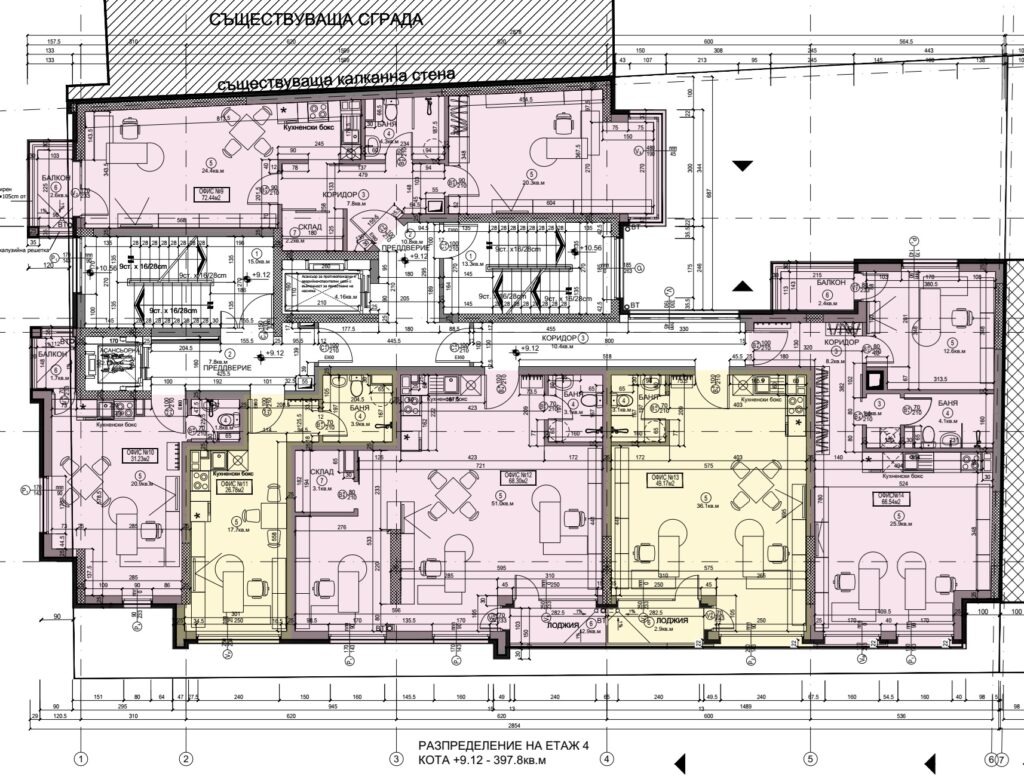
85м2 и 93м2, на 2-ри, на 3-ти и на 4-ти етаж, в представителна нова сграда от 2025г., луксозно изпълнени общи части, качествено строителство, възможност за надземни и подземни паркоместа.
Разпределение: приемни, работни помещения, санитарни помещения, тераси.
Удобни варианти на разсрочено плащане, съобразно възможностите на купувача.
Съдействие за банково кредитиране.
Директно от инвеститора, без комисиона.
За подробности и огледи: 0887104488, Галя Цветкова







