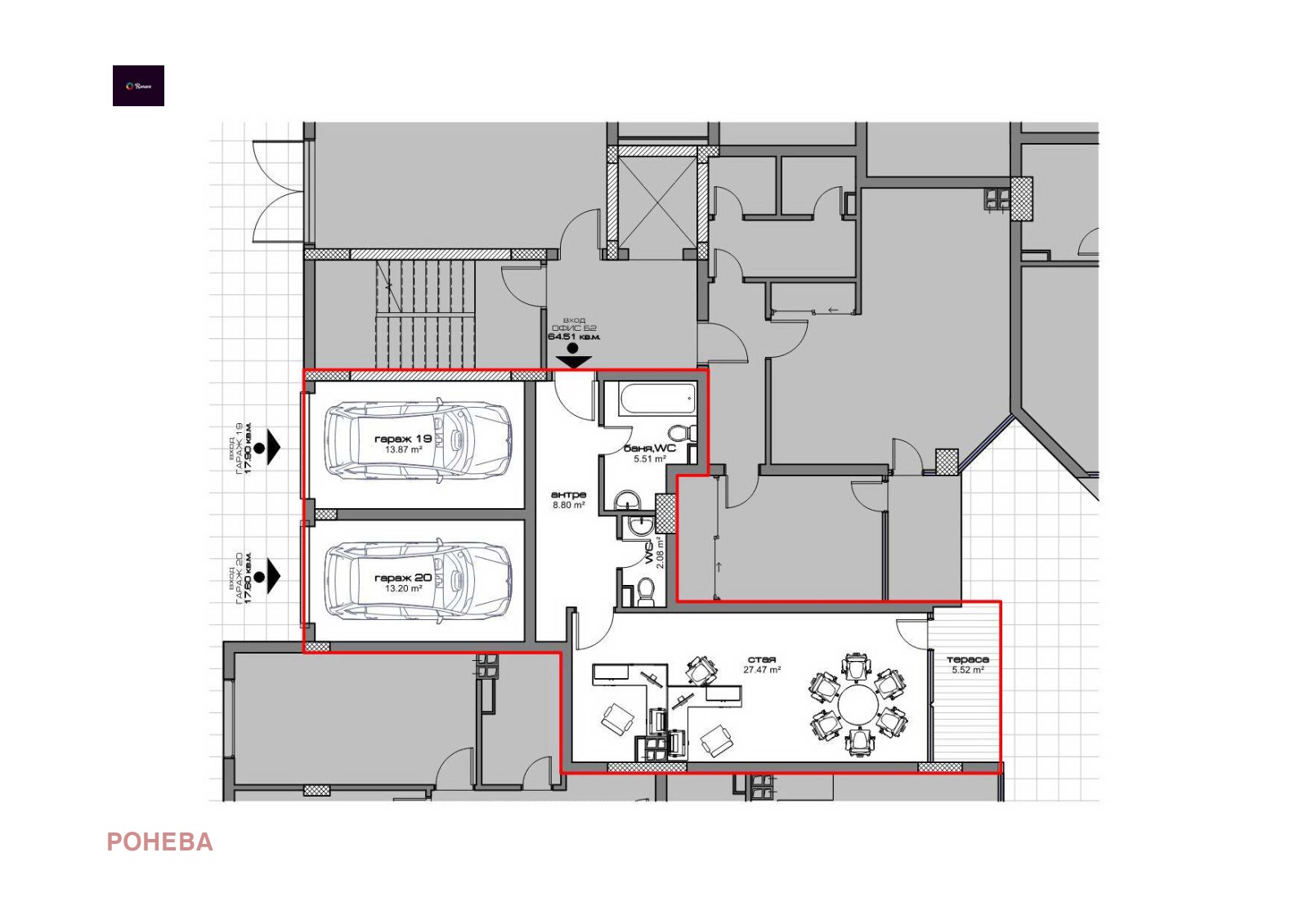
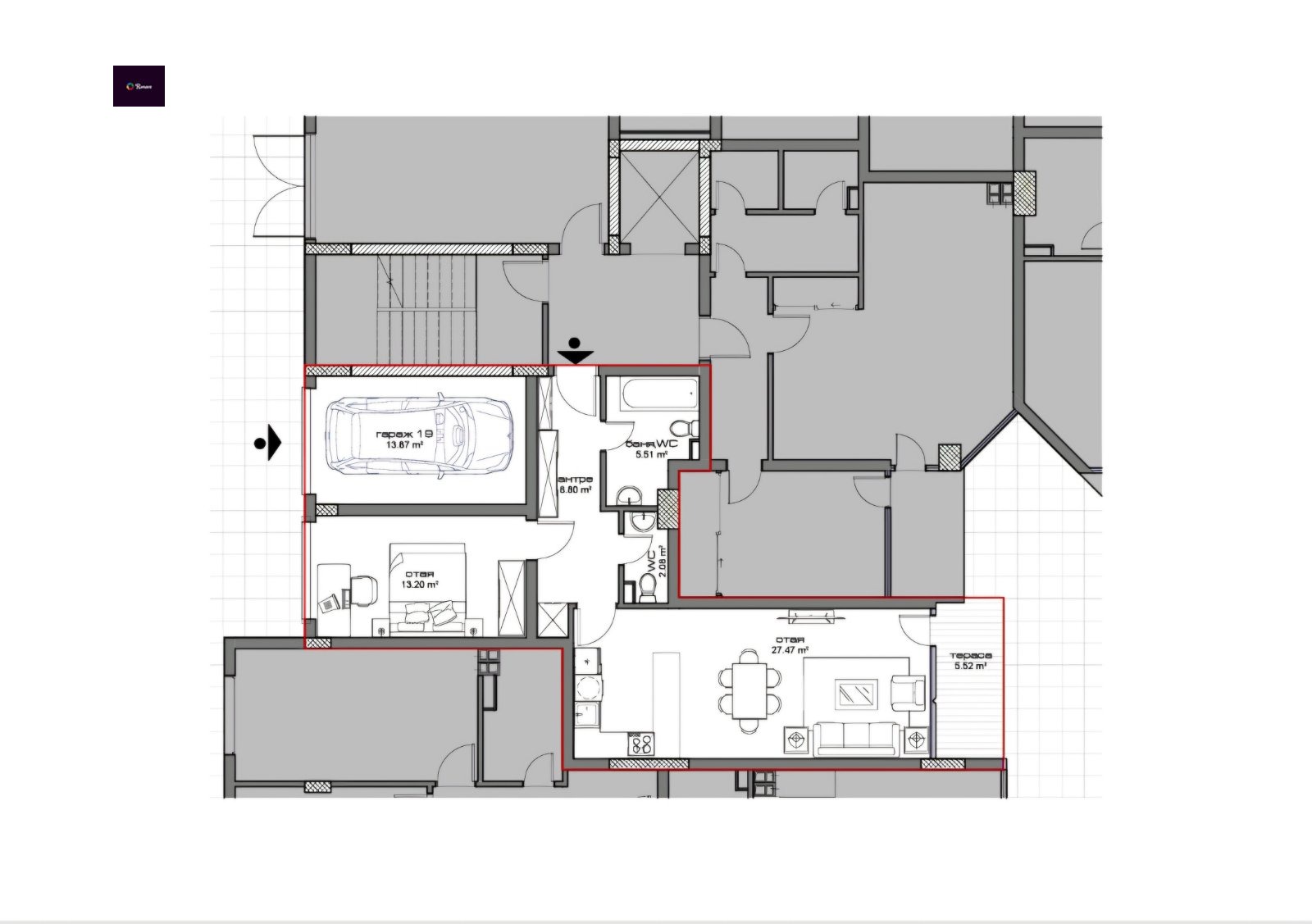
Разпределение ;коридор , зала тип 'Open space '' , баня с тоалет ,тоалет ,тераса ,два гаража .
Архитектурният проект позволява промяна на обекта във вариант ателие за жилищни нужди със следното разпределение : коридор ,дневна с кухня и трапезария , спалня , баня с тоалет ,килер ,гараж .
Площ :офис- 65 кв.м
Гараж 1-18 кв.м
Гараж 2- 18 кв.м
Цената е без включено ДДС .
Предимства : нова сграда с луксозни общи части ,контрол на достъпа ,24 часова
охрана и видеонаблюдение ,висок клас дограма с отлични шумоизолационни и
топлоизолационни показатели .
При избор на имот винаги може да разчитате на безплатна консултация от специалистите от РОНЕВА ООД.
Предлагаме също така и съдействие за отпускане на банков кредит, помощ при сключване на сделки и подготвяне на нужната документация!
Виж всички обяви в roneva.bazar.bg или тук
        
       
         
         
         
         
         
         
         
         
         
         
             
             
             
             
             
             
             
             
             
            


