Административна сграда разпределена, както следва:
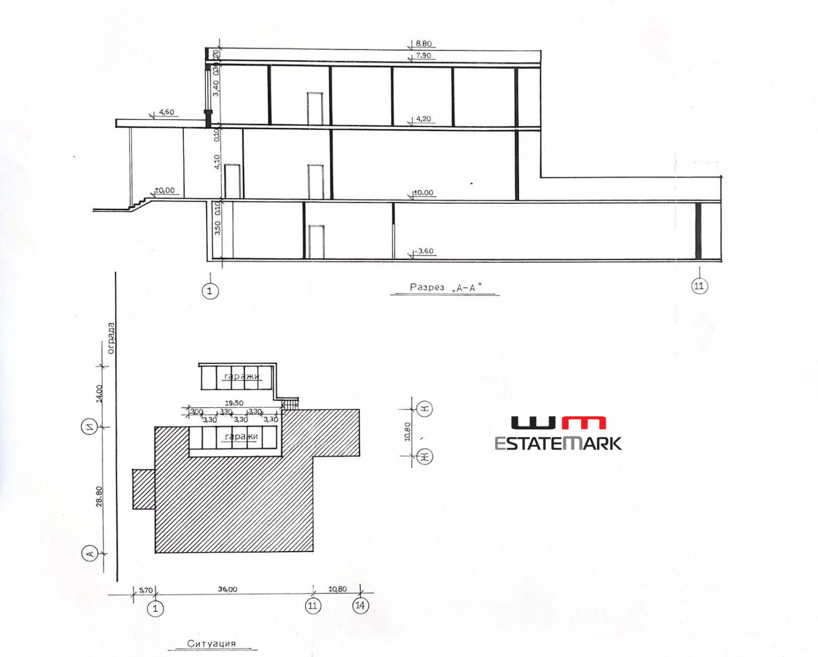
Партер 350 кв.м. - отворени пространства тип магазин със светла височина 3,20 до 3,50 метра, офис помещения, помещение за охрана, санитарни възли/виж схемата/.
Първи етаж 350 кв.м. - офис помещения и санитарни възли /виж схемата/.
Светъл сутерен 800 кв.м.с английски двор с втори отделен вход и светла височина около 3,20 метра, различни по големина помещения /виж схемата /.
7 паркоместа.
Сградата е масивна стоманобетонна конструкция в добро състояние.
Подходяща, както за административни нужди, така и за чисто производство, представителство.
За контакт: Мариян Тодоров 0876 394 766
Професионалист по недвижими имоти.







