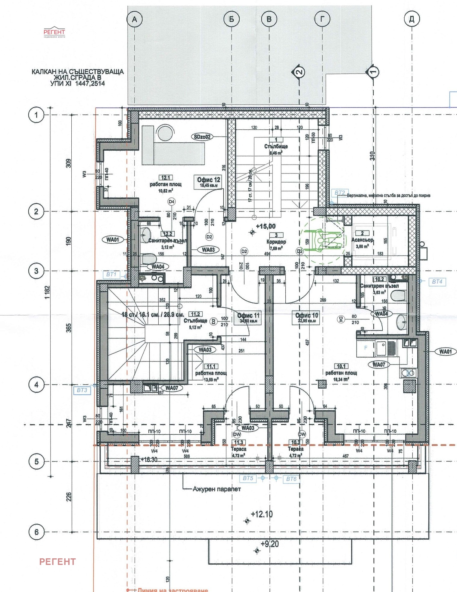
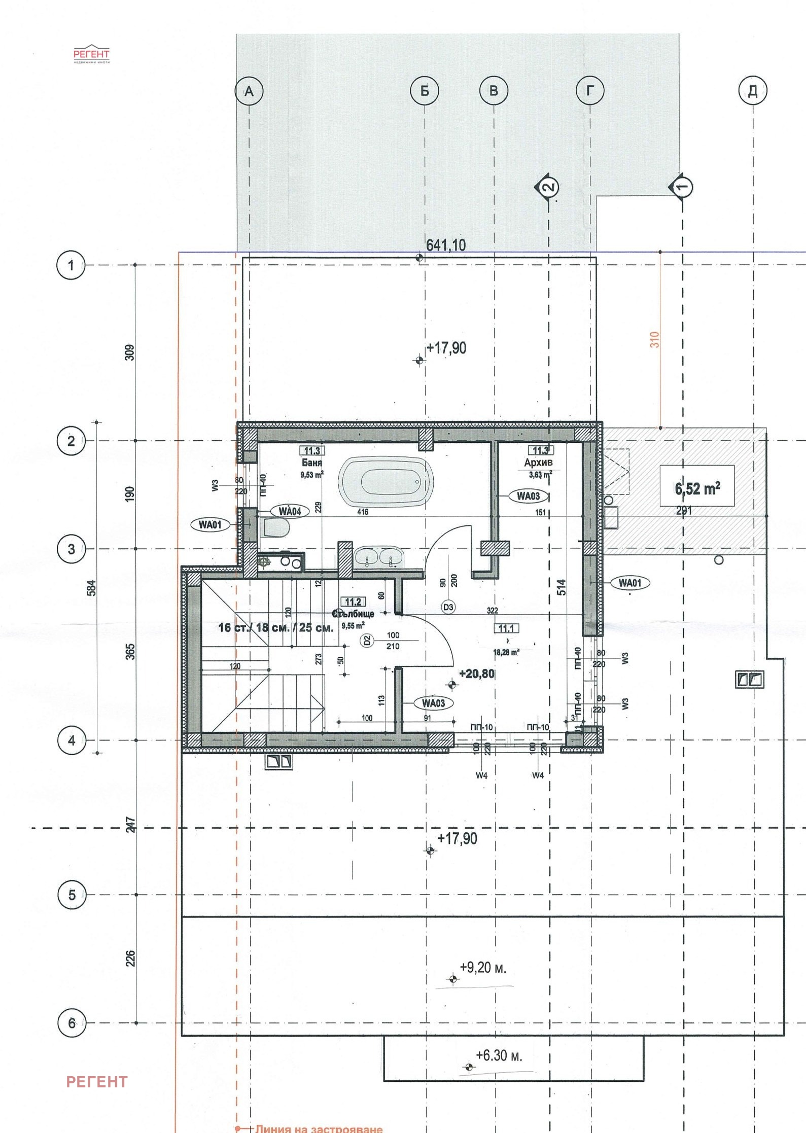
Представяме ви просторен тристепенен имот (тризонет), разположен в сграда с Акт 14, на отлична локация в гр. София.
Имотът се състои от три нива и впечатлява с изключителна панорамна гледка към Витоша, града и Стара планина.
- Подходящ както за живеене, така и за:
офис пространство
учебен или обучителен център
инвестиция с цел отдаване под наем
- Статут: офис
- Разпределение: три нива
- Етап на строителство: Акт 14
Имотът предлага гъвкави възможности за преустройство според нуждите на бъдещия собственик.
💰 Цена: посочената цена е с включен ДДС.






