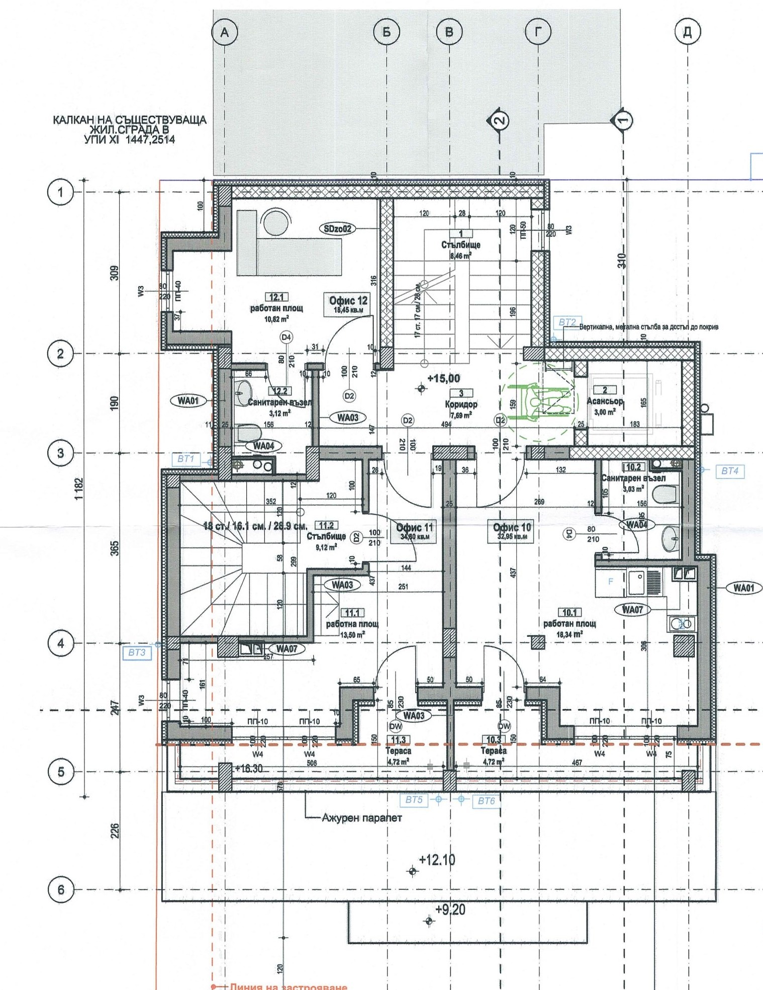
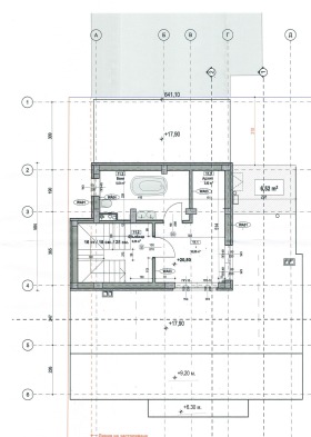
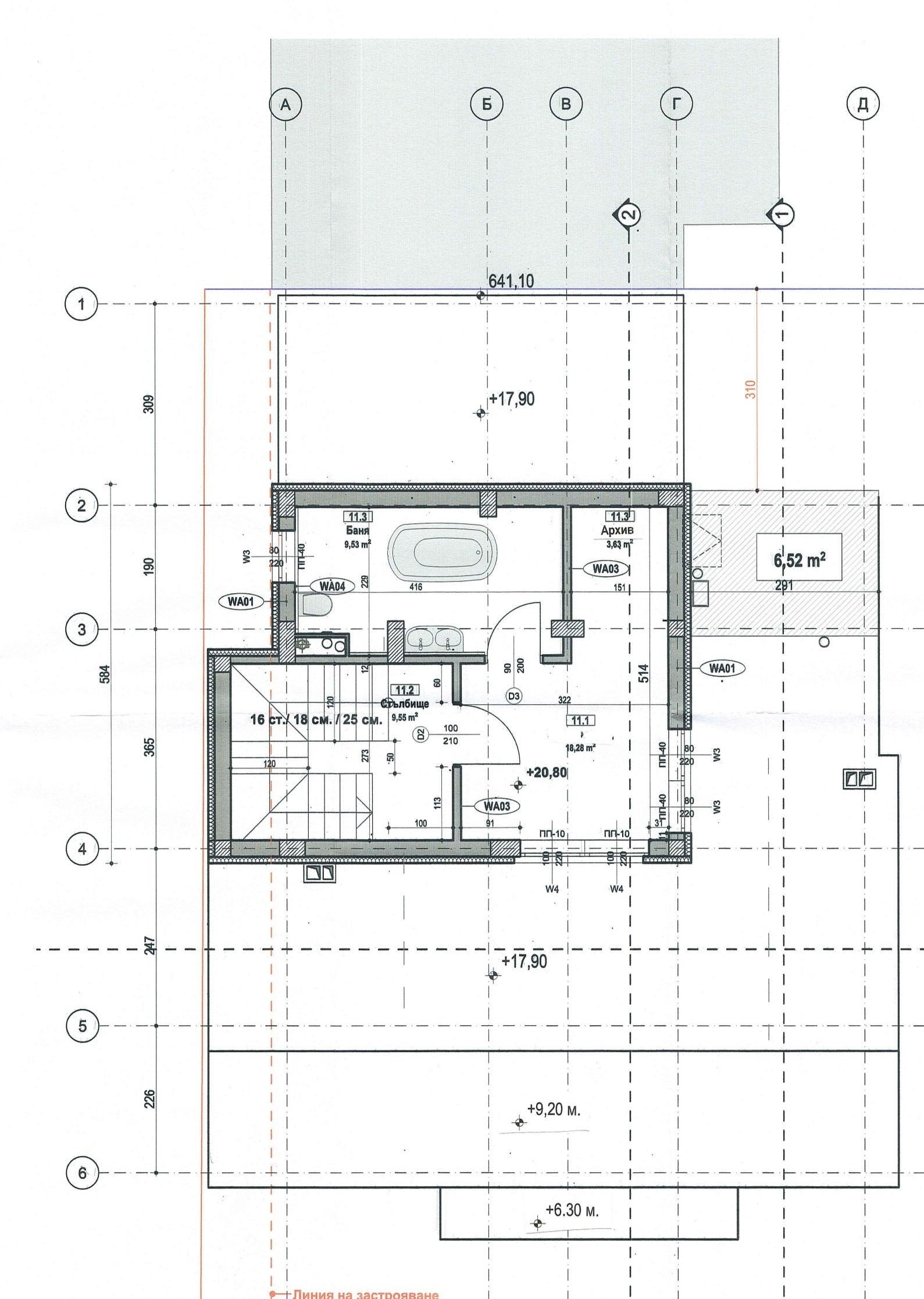
Тризонет на акт 14 на ул. проф. Кирил Попов 30.
Три нива - със страхотна панорама към Витоша, София и Стара Планина.
Подходящ и за жилище и за обществено обслужване - офис, учебен център или за отдаване под наем.
Статут - офис.
Цената е с вкл. ДДС, което подлежи изцяло на възстановяване.
Възможна е работа с посредници с комисионна 2,5 %.
Изображенията може да бъдат ползвани свободно от посредници.



