ПАНОРАМА! ПЕШЕХОДНО РАЗСТОЯНИЕ ОТ КАТЕДРАЛА! ДОКАЗАН СТРОИТЕЛ! ПРЕД АКТ 15!
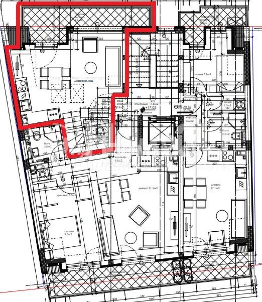
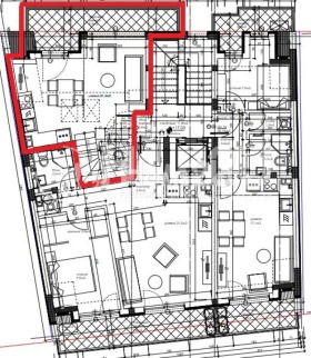
Представяме ви тристаен апартамент разположен на два етажа със следното разпределение - слънчева кухня с дневен тракт с излаз към тераса, две спални с излаз към тераса, коридор, перално помещение, голяма баня с тоалетна, килер. От дневната се открива красива гледка към Аспарухов мост, морето и Галата. Сградата е с отлична локация и модерна визия. Има възможност за покупка на паркомясто.
От нас можете да получите съдействие за ипотечен кредит и безплатна услуга на кредитен консултант от Кредит Мол. Работят със всички банки на пазара.
За оглед и повече информация се обадете СЕГА на посочения телефон и цитирайте код: 234696







