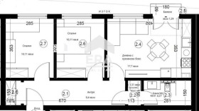
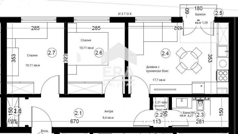
Само в ЕРА Лайф! Обявеният за продажба апартамент е със застроена площ 62,7 кв.м (73,49 кв.м с общите части), разположен на втори етаж от общо 4 етажа. Състои се от входно антре (9,4 кв.м), дневна с кухненски бокс (17,7 кв.м) и излаз на балкон, две спални (по 10,11 кв.м всяка), килер/склад (1,48 кв.м), баня с тоалетна (4,27 кв.м) и перално помещение (1,31 кв.м). Статут на имота: апартамент.
Изложение на имота: изток. Жилището ще бъде завършено по БДС стандарт - на шпакловка и замазка с поставена ПВЦ дограма и входна блиндирана врата. Продава се без обзавеждане. Отоплението е на ток.
Ексклузивното жилище е част от жилищна сграда, която ще бъде с контролиран достъп и луксозни общи части. В сградата ще функционира автоматичен асансьор. Паркирането е свободно в междублоковото пространство.
Етап на строителство- пред Акт 14. Има възможност за закупуване на външно паркомясто за 10500Е.
Район Кайсиева градина е част от един от най-големите квартали във Варна - Владислав Варненчик, който разполага с училища, детски градини, магазини и редовен градски транспорт. Подходящ е за семейства и хора, търсещи уют и удобство в ежедневието. Отличава се с просторни междублокови пространства и лесен достъп до центъра и главните булеварди. Код: 0708943
Оферта 0708943







