ИЗГОДНА ЦЕНА ЗА 4-СТАЕН АПАРТАМЕНТ В НОВА ЛУКСОЗНА СГРДА С АКТ 16
Green home предлага за продажба четиристаен апартамент /тип мезонет/, находящ се в нова жилищна сграда /с AKT 16/ в кв. Младост.
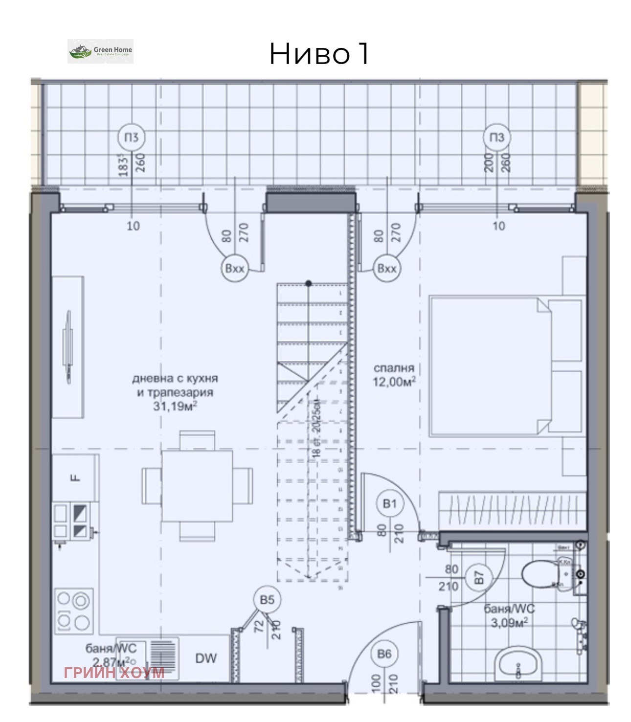
Разпределението е както следва:
Първото ниво - дневна с кухненска част и трапезария, спалня, баня с тоалет, килер и тераса.
Второ ниво - две спални, килер и баня с тоалет.
Сградата е с модерна и отличаваща се архитектура. Изградена с висококачествени материали от доказан през годините строител .
Отлична локация до хипермаркет 'Lidl' и 'Mr Bricolage'. Кварталът разполага с множеството училища, детски градини, ясли, спирки на градския транспорт, спортни и детски площадки.







