БИЛДИНГ БОКС предлага изключително просторен и добре проектиран мезонет на две нива в нов, модерен затворен комплекс.
Жилището съчетава функционалност, комфорт и усещане за самостоятелен дом, благодарение на собствените дворове и специфичното разпределение.
Локацията е отлично позиционирана в непосредствена близост до затворения комплекс 'Oasis Residence', Американското училище, както и само на 5 минути от езерото 'Панчарево'.
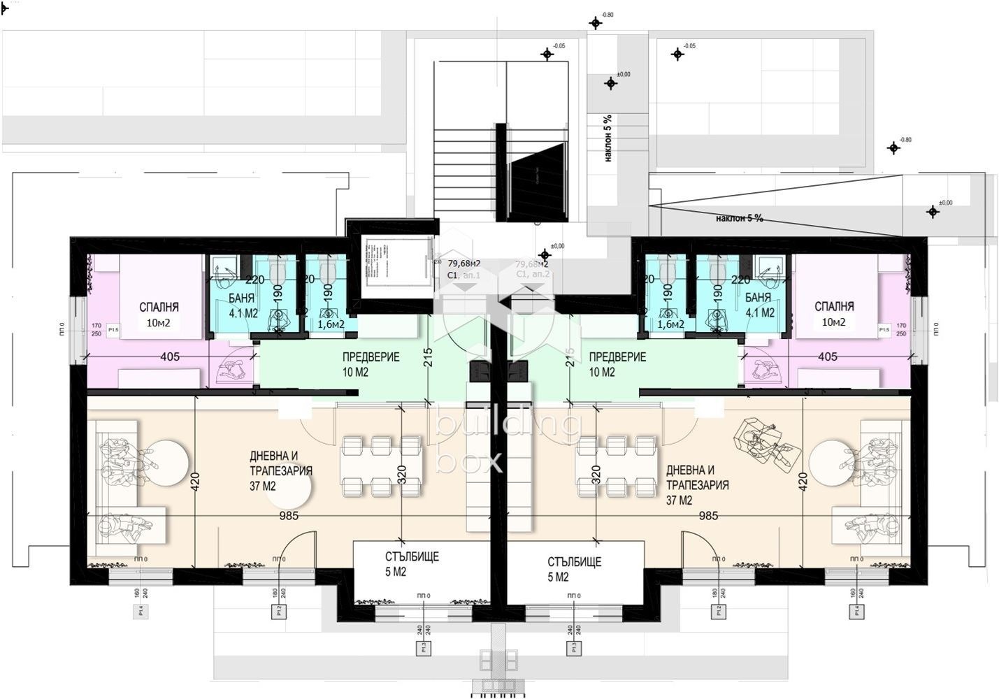
РАЗПРЕДЕЛЕНИЕ
Първо ниво партер. Разположено на партерния етаж, което осигурява лесен и директен достъп. На това ниво са разположени:
просторна дневна с кухненски бокс и трапезария;
спалня със самостоятелна баня и тоалетна;
вътрешно стълбище към второто ниво;
впечатляващ английски двор с площ 174.80 кв.м, който разширява жилищното пространство и дава възможност за създаване на собствена зелена зона за отдих.
Второ ниво сутеренно, но светло и обитаемо. Въпреки че е ситуирано на сутеренен етаж, пространството е проектирано така, че да бъде светло, уютно и напълно подходящо за ежедневно живеене. Тук ще откриете:
спалня с баня и тоалетна;
втора спалня;
допълнителна баня с тоалетна;
английски двор;
покрита тераса с площ 129.27 кв.м, осигуряваща допълнителна функционална зона за релакс или семейни активности.
Изложение: югозапад, което гарантира приятна естествена светлина през целия ден.
Състояние и технически характеристики:
Сградата е с Акт 15, а отоплението е предвидено на газ и електричество.
Има възможност за закупуване на подземен гараж или паркомясто.
Комплексът е сертифициран с енергиен клас А и е изпълнен с висококачествени материали:
25 см тухлена зидария Wienerberger;
15 см експандиран пенополистирол Dalmatina;
фасадна облицовка от клинкер;
асансьор Orona за 8 лица;
дограма с алуминиев композитен профил ETEM E75 в цвят антрацит;
троен стъклопакет с външно 4 сезона стъкло и вътрешно K-стъкло.
Общите части са стилно оформени, а богатото озеленяване в комплекса, близостта до минерални извори и природата създават здравословна и хармонична среда за живот.
БИЛДИНГ БОКС предоставя безплатна консултация и съдействие при финансиране на избрания от Вас имот.
Оферта 26748







