ОТЛИЧНА ИНВЕСТИЦИЯ! 'Елиз дом' предлага на вашето внимание тристаен мезонет тип 'къща' в модерен жилищен комплекс в най-южния квартал на Варна - Галата, характерен с панорамните си гледки към живописния залив на града и Черно море. Концепцията на комплекса включва комбинация от съвременни удобства, сигурност и комфорт, сред зеленина и природа, в близост до морето и далеч от градския шум и трафик.
Етап на строителство: Акт 14
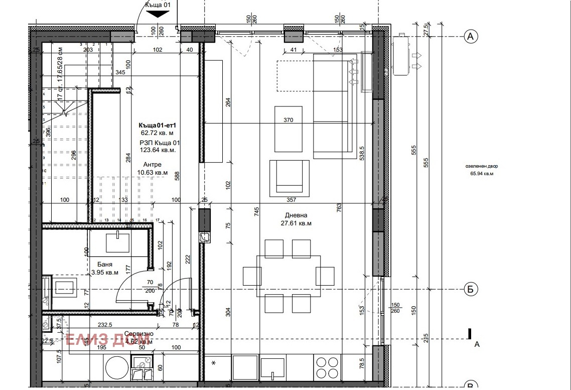
Имотът е тип къща с двор и самостоятелен вход, функционално разпределение, светли и просторни стаи с югоизточно изложение.
Ет.1: дневен тракт (27.61 кв.м) с излаз към озеленен двор, баня (3.95кв.м), сервизно помещение (4.62 кв.м.) , антре (10.63кв.м) и стълбище към втори етаж;
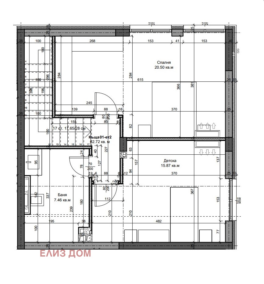
Ет.2: две спални (20.50кв.м и 15.87кв.м), баня (7.46кв.м), коридор.
Комплексът е изграден върху терен от 15.3 дка и се състои от пет шестетажни жилищни сгради и търговски комплекс. Сградите са разположени така, че всяка да има своя собствена панорама и достатъчно пространство и светлина.
Строителството се извършва съобразно най-високите европейски стандарти, като акцентът е върху изключителната енергийна ефективност, постигната чрез висококачествена топлоизолация и модерни материали. Общите части са изпълнени с гранит, а асансьорите KONE MonoSpace (8 места) осигуряват комфорт и надеждност.
За продажба предлагаме двустайни, тристайни и четиристайни апартаменти, включително и мезонети - тип къща с двор.
Още предложения от 'ЕЛИЗ ДОМ' можете да разгледате на www.eliz-dom.com







