Представяме мезонет за продажба на преференциална цена в новосторояща се жилищна сграда. Сградата е единствената от тип - многофамилна жилищна сграда с апартаменти в комплекс, изцяло застроен с къщи, разположен в полите на Витоша.
ПРЕД АКТ 16!
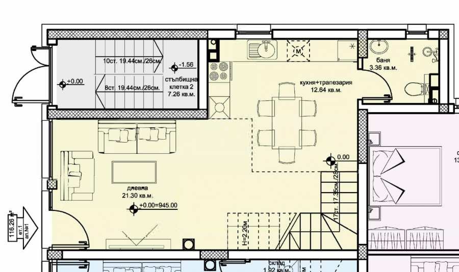
Апартаментът е на две нива с обща площ 142.47 кв.м. (нетна площ 116.26 кв.м. + общи части 26.21 кв.м.) и се състои от входно антре, хол с кухненски бокс, 3 спални, две бани с тоалетна и два балкона.
В комплекса има супермаркет, ресторант, автосервиз и други удобства. Наблизо има плувен комплекс, лесно се стига до язовир Студена и до началото на еко-пътеки в природен парк Витоша .
Основното предимство на местоположението е чистият въздух в района и бързият достъп до столицата.
Жилищната сграда се състои от общо 10 апартамента от различни типове, мазета към тях, магазин и подземни гаражи.
На първия етаж се намира магазинът, първите етажи на два мезонета и два тристайни апартамента.
На втория етаж са вторите нива на мезонетите, както и един едностаен и два двустайни апартамента.
На третия етаж са два двустайни апартамента и първо ниво от мезонет.
На четвъртия етаж е второто ниво на мезонета.
Апартаментите се издават по БДС в следната степен на завършеност:
Дневна - стени и тавани фина мазилка (турбозол), под - циментова замазка;
Кухня и трапезария - стени и тавани фина мазилка (турбозол), под циментова замазка, изводи за студена и топла вода на тапи, канал за мръсна вода;
Спални - стени и тавани фина мазилка (турбозол), под циментова замазка;
Антрета и коридор - стени и тавани фина мазилка (турбозол), под циментова замазка;
Килери и бани - под циментова замазка, стени и тавани мазилка, изводи за студена и топла вода за мивка и душ на тапи, мръсен канал за мивка, душ и тоалетна за банята;
Тераси - под - гранитогрес и отводняване във водосточни тръби, монтиран парапет, осветление аплик.
Технически ...
За повече информация свържете се с нас и цитирайте референтния номер на имота. Моля, кажете, че сте видeли обявата в този сайт.
Референтен номер: SOF-110246
Тел: 0882 638 435, 02 454 11 69
Отговорен брокер:Александър Първанов
Без комисиона от купувача
Виж всички обяви в superimoti.bazar.bg или тук







