ПАНОРАМНА ГЛЕДКА ! АКТ 16 !
Представяме Ви просторен мезонет, разположен на три нива в нова сграда с Акт 16 в кв. Манастирски ливади Запад. Сградата е изградена изцяло с материали от най-висок клас и се отличава с модерна архитектура.
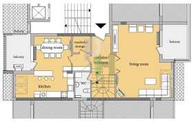
Разпределението включва:
Първо ниво: просторна дневна с трапезария и кухня, входно антре с гардеробно помещение, санитарен възел и балкон;
Второ ниво: две самостоятелни спални, баня с тоалетна, коридор и балкон;
Трето ниво: таванско помещение и покривна тераса с панорамна гледка към планината и града.
Налични са възможности за вътрешни и външни паркоместа и гаражи.
За повече информация и огледи се обадете на посочения телефон и цитирайте код: 726 - 10







