БЕЗ КОМИСИОНА ОТ КУПУВАЧ!
Референтен код: 29155
Запази оглед тук: https://flatimo.bg/view-property/prostoren-mezonet-v-novostroyashta-se-sgrada-v-zhk-banishora-fc5cbcd5
Многостаен мезонет в модерна жилищна сграда на отлична локация в ж.к. Банишора . Сградата се състои от сутерен и седем надземни етажа, включващи общо шест самостоятелни обекта.
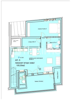
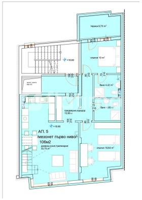
Апартаментът е разположен на шести и седми етаж.
Обща площ: 244.44 кв.м (застроена площ 211.5кв.м + общи части 32.94 кв.м)
Разпределение:
Ниво 1: Две спални, една от които с тераса, просторна дневна с кухненски тракт ( 33 кв.м), два санитарни възела
Ниво 2: Една спалня, просторна дневна с кухненски тракт (40 кв.м.), голяма тераса с цветарник ( 19 кв.м. ), две складкови помещения и един санитарен възел
Паркиране: Възможност за закупуване на паркомясто на цени започващи от 19 000.
Строителството е започнало през октомври 2024 г. и ще бъде завършено до края на 2026 г. Сградата ще разполага с луксозни общи части и представително фоайе. Фасадата ще комбинира алуминиев композит, структурна мазилка, дървесен декор и естествен камък.
Дограма: Висок клас алуминиева дограма на белгийската фирма Reynaers
Отопление и климатизация: Мултисплит система климатици
Допълнителни удобства: Зарядна станция за електромобили, зони за паркиране на велосипеди
Апартаменти: Предлагат се още 3 тристайни апартамента на различни етажи на цени от 287,733.60 с ДДС.







