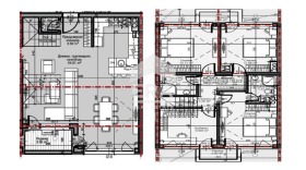
ЕRA Младост предлага четиристаен апартамент на две нива в новоизграждащ се жилищен комплекс, находящ се в ж.к. Младост 4, гр. София. Апартаментът се състои от: просторна всекидневна с кухненски бокс, и гледка към Витоша, четири спални, две бани с тоалетна, отделно тоалетна, входно антре, склад и южна тераса. Имотът ще бъде предаден на шпакловка и замазка, с масивна входна врата от висок клас и дограма, ел. инсталации и ВиК - на точка и тапа, газ до апартамента. Качествено и модерно изпълнение от доказал се инвеститор.
Сградата е разположен в София, ж.к. Младост 4, до Бизнес парк София, метростанция Бизнес парк , бул. Александър Малинов и Околовръстен път, осигуряващи директен достъп до по-голяма част от града. В близост до магазини и новострояща се спортна зала. В района предстои изграждане на детска градина.
В сградата са проектирани функционални и светли жилища, предлагат се двустайни, тристайни и четиристайни апартаменти с площ от 54 кв.м. до 152 кв.м, гаражи и открити паркоместа.
Сградата е на етап довършителни работи, издаден Акт 14. Разрешение за ползване 2026 г.
ЕРА България е независим кредитен посредник към БНБ с номер BCI000024 и предоставя безплатна консултация и съдействие при финансиране на избрания от Вас имот.
Оферта 0312266







