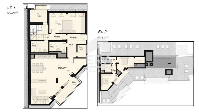
Апартаментът се състои от :
1 етаж : входно антре, дневна с кухненски бокс с излаз към балкон, склад, две спални, едната от която със собствен дрешник, две бани и още един балкон.
2 етаж: антре, две спални с излаз към балкон, едната от която със собствен дрешник, и една баня.
Югоизток.
Обща площ: 224.70m?
Затроена площ: 190.63m?
Етаж: 7/8
Сградата е с отлично местоположение с удобна и бърза връзка с центъра на града, посредством бул. Цар Борис III. В непосредствена близост се намират няколко учебни заведения, детски градини, болници, банки, спортни зони, търговски обекти и спирки на градски транспорт.
ЗА СГРАДАТА:
- Изолация на фасадните повърхности е от EPS/минерална вата с дебелина 10 см.
- Топлоизолация е от XPS с дебелина 14 см
- Отопление на ТЕЦ и климатична система
- Луксозни общи части и фасада
- Партер и сутерен с паркоместа и гаражи
АКТ 14 - 2025г.
АКТ 16 до края на 2026 г. Всички цени са без ДДС !
CreditERA предоставя безплатна консултация и съдействие при финансиране на избрания от Вас имот от всички водещи банки в страната и ще договори най-добрите условия за вас!
Оферта 4062094
Виж всички обяви в goldestate.bazar.bg или тук
        
       
         
         
         
         
         
         
             
             
             
             
             
            






