МЕЗОНЕТ СЪС СОБСТВЕН ДВОР (партер + първи жилищен етаж), в нова сграда със заверен Акт-14 и чл.181, находяща се на ул. Боряна, на пешеходно разстояние до Метростанция 'Монтевидео' и НБУ (10-12min), както и в непосредствена близост до магазини, аптека и гр. транспорт!
Имотът се състои се от:
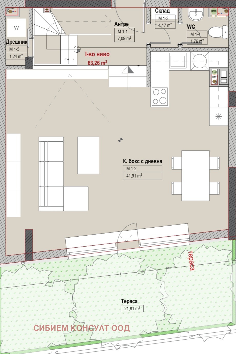
1-во ниво - входно антре, изключително просторна и обширна дневна с кухн. бокс, дрешник/килер, складово помещение, тоалетна и озеленена тераса (ограден малък двор 22кв.м.);
2-ро ниво - 2 спални, баня-тоалетна, складово помещение и чудесна тераса с ЮЖНО изложение.
Посочената обща квадратура и цена включва още мазе и собствени ид.части от дворното място, имотът се издава на цим. замазка/машинна гипсова шпакловка, висококачествена ПВЦ-дограма и блиндирана вх. врата, отопление на електричество/газ, очакван Акт-16 в края на 2026г.
✅Към мезонета може да се закупи надземно открито или покрито паркомясто, на цени от 28539-46820 евро, с включен ДДС!
✅Аг. СИБИЕМ КОНСУЛТ съдейства за своевременното осигуряване на ипотечни и/или потребителски банкови кредити, от всички банкови институции в София и страната.
✅Продажната цена е с ДДС, включва стойността на жилището, склад 2.22кв.м., прилежащ двор 22кв.м. и 11.11 % ид.ч. от земята, 0 % комисион от купувача!
Башев 0888960399







