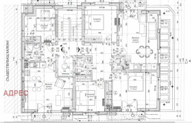
Многостаен апартамент, изцяло ориентиран на югоизток, на среден етаж, в модерна новострояща се сграда с акт 14 и в близост до Катедралата. Имотът се състои от дневен тракт с площ 23 кв.м, три спални с площ съответно 18, 13 и 11 кв.м, две тераси , баня с тоалет, отделно тоалет. Жилището се предлага завършено по БДС. Разсрочено плащане. Срок на завършване септември 2026 г. Има възможност за покупка на партерни гаражи и паркоместа.
Отлично местоположение - на пешеходно разстояние от Катедралата и Шадраваните на Варна. В близост са разположени училище, детска градина, магазини.
Новострояща се тухлена сграда с акт 14 с асансьор и паркинг на партерно ниво
Многостаен апартамент подходящ, както за живеене, така и за инвестиция, в близост до центъра на Варна, нова модерна сграда.
Обади се сега и цитирай този код 656639







