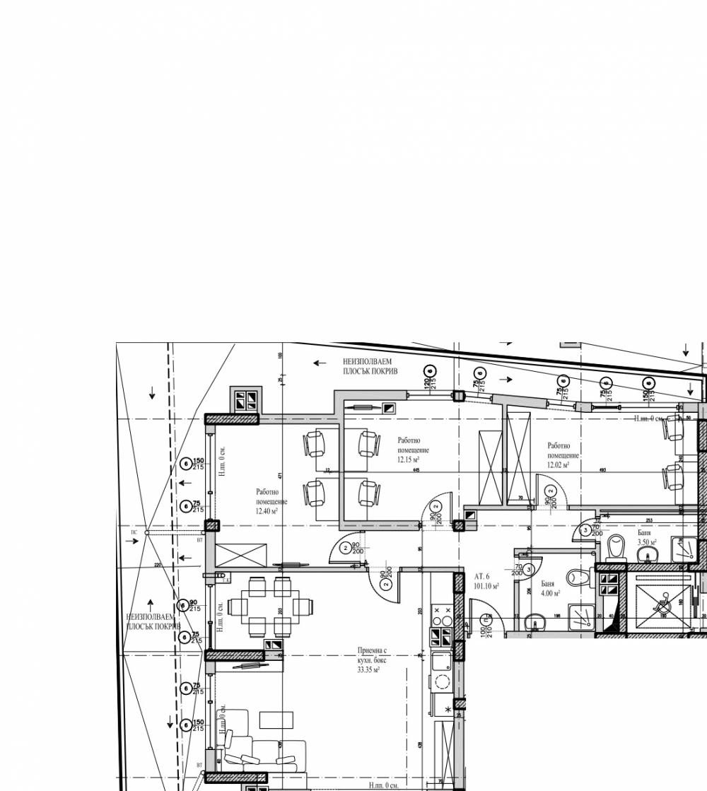
Многостайно жилище със застроена площ от 101,10 кв.м., състоящо се от антре, дневна с кухненски бокс, три спални и две бани с тоалетни.
Намира се в кв. 'Манастирски ливади - изток', в близост до бул. 'България', МОЛ 'България', непосредствено до бъдещия 'Линеен парк Манастирски ливади'.
Бърз достъп до Околовръстен път и изходите на столицата.
Сграда с Акт 16 с монолитна стоманобетонна конструкция. Външни ограждащи стени от тухли 'Wienerberger Porotherm'. Вътрешни преградни стени от тухли 'Wienerberger Porotherm'. Фасадата е с интегрирана топлоизолационна система BAUMIT и крайно покритие от мазилка BAUMIT. Фасадата има акценти от HPL. Трикамерна PVC дограма със стъклопакет тип четири сезона. Блиндирани входни врати на 'Солид'. Изцяло изградена електрическа инсталация. Изградено окабеляване за кабелна телевизия, телефон, интернет, звънчева и домофонна инсталация. Изградени трасета за вентилация за подземни гаражи, тоалетни, бани и кухненски боксове. Изградени трасета за отопление във всяка стая. Газова инсталация до тапа. Асансьорите са 'Kone'. Общите части са с гранит и гранитогрес, парапетите са по проект. Изцяло изградена вертикална планировка, съгласно утвърден проект за паркоустройство и благоустройство. Шпакловка и замазка.
Ново строителство, на удобна локация, с бърз достъп до всички точки на града
В подножието на планина Витоша
Изключително тихо и озеленено място
Обади се сега и цитирай този код 615398







