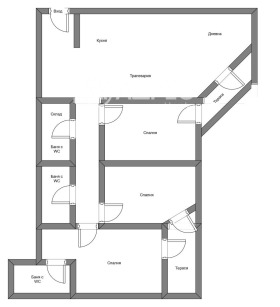
Многостаен апартамент, състоящ се от: дневна с кухня, три спални, три бани с тоалетни, мокро помещение и две тераси с гледка към планина Витоша и столицата. Има възможност за закупуване на подземно паркомясто.
Намира се до бул. 'Черни връх', точно под скоростната отсечка, свързваща се с Околовръстен път. Бърз и лесен достъп до централните пътни артерии както с автомобил и автобус, така и с метро.
Нова многофункционална сграда. Модерен дизайн, стил и комфорт. Притежава функционалност и урбанистична визия, 360 градусови гледки, светли и просторни помещения.
Безкомпромисно качествено ново строителство. Модерна архитектурна визия и функционални разпределения. Енергоефективни и екологични материали и технологии. 360-градусови гледки към планина Витоша и град София. Пряк достъп до бул. 'Черни връх'. Удобен и лесен достъп до центъра на столицата и Околовръстен път. В близост до планина Витоша и множество локации за отдих и забавление.
Обади се сега и цитирай този код 569753







