Просторен многостаен апартамент в кв. Изток близо до метростанция Жолио Кюри
Primo+ недвижими имоти има удоволствието да представи ексклузивен имот, разположен в сърцето на един от най-желаните и елитни райони на София квартал Изток. Ситуиран на тихата и емблематична улица Антон П. Чехов , в непосредствена близост до ул. Фредерик Жолио-Кюри , този дом предлага перфектния баланс между градска динамика и спокойна жилищна среда.
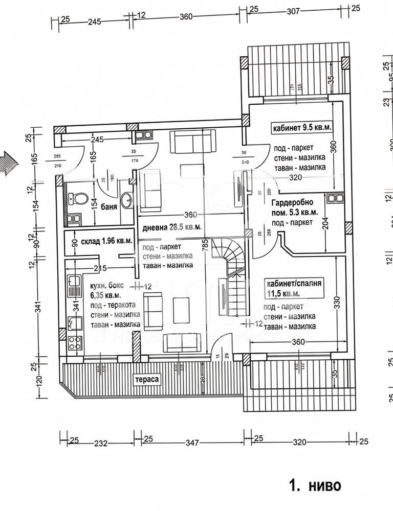
Имотът впечатлява със своята нетна площ от 104 кв.м (застроена площ), като в тази квадратура не са включени общи части, което гарантира реално и функционално пространство. Апартаментът е развит на две нива, предлагайки усещане за простор и независимост:
Ниво I: Антре, модерна баня с тоалетна, просторна всекидневна с кухненска зона, две светли спални с общо дрешник пространство между тях и голяма остъклена тераса, подходяща за кът за релакс.
Ниво II: Втора дневна зона с елегантно емпоре, допълнителна спалня със самостоятелна баня и тоалетна, както и функционално бонус помещение (склад или мокро помещение).
Тип строителство: Тухла (1986 г.)
Състояние: Напълно завършен до ключ , поддържан и готов за обитаване.
Сградата е без асансьор!
Благодарение на функционалното си разпределение, имотът позволява лесно преустройство според нуждите на новия собственик обособяване на 3 спални, просторна трапезария или отделен кабинет за хоум офис. Имотът е със съвременно излъчване, функционално разпределение и не изисква основни ремонтни дейности.
Подови настилки: Комбинация от светъл ламиниран паркет в стаите и теракота/гранитогрес в коридорите и кухненския бокс.
Стени и тавани: Гипсова мазилка и латекс; декоративен фаянс в кухнята.
Дограма и врати: Обновена бяла PVC дограма; нови интериорни врати (MDF) в бял цвят.
Санитарни възли: Напълно оборудвани с фаянс, санитария и монтирани смесители.
Инсталации: Монтирани алуминиеви радиатори, ключове, контакти и осветителни тела.
Кухня: Налична ъглова конфигурация с вградени електроуреди (фурна, котлони, абсорбатор).
Стълбище: Стабилна метална конструкция с дървени стъпала към второто ниво.
Имотът е с изрядни документи и редовно обслужвана ипотека в една от водещите банки.
Кв. Изток е синоним на висок стандарт. Районът предлага всичко необходимо за съвременния градски човек:
Транспорт и свързаност: На по-малко от 5-7 минути пеша се намира метростанция Жолио Кюри , която осигурява бърз достъп до Центъра и Бизнес Парк София. В района минават множество автобусни и тролейбусни линии по бул. Цариградско шосе и бул. Драган Цанков .
Зеленина и спорт: На крачки от входа на Борисовата градина най-големият парк в София, идеален за разходки, спорт и чист въздух.
Образование и здравеопазване: В непосредствена близост се намират 119. СУ Академик Михаил Арнаудов , детски градини, дипломатически представителства и елитни клиники.
Търговски обекти: Магазини от големите вериги като Lidl и Billa, био магазини, аптеки, банкови офиси и някои от най-добрите ресторанти и кафенета в столицата.
Защо да изберете този имот?
Локация без компромис: Кв. Изток запазва своята стойност във времето, което прави имота и отлична инвестиция.
Пространство за семейството: С площ от 104 кв.м и опция за 3 спални, това е идеалният дом за отглеждане на деца.
Сигурност: Имотът е с изрядни документи и редовно обслужвана ипотека към водеща банка, което гарантира спокойствие при сделката.
Готовност за преустройство: Възможността за кабинет или допълнителна спалня го прави адаптивен към всякакъв стил на живот.
Ключови предимства накратко:
Реална площ: 104 кв.м ЗП (без включени общи части).
Топ локация: Ул. Чехов , близо до метро и парк.
Функционалност: Две нива, емпоре, бонус помещения.
Инвестиционен потенциал: Високо търсене за наеми в района.
Виртуална разходка: https://my.matterport.com/show/?m=vmqTuBbCmTp
За повече информация и организиране на личен оглед, моля свържете се с нас:
Брокер: Веселин Маринов
Телефон: +359 878 333 965
Имейл: [email protected]



