Гъвкави схеми на плащане.
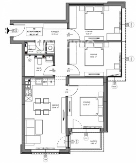
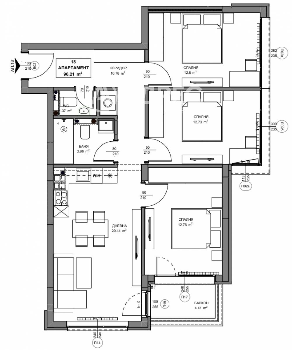
Многостаен апартамент с РЗП- 117,11м?, ЗП-96,21м? с включен склад 18-3,29м?. Разпределение: коридор, дневна с кухненски бокс и трапезария, три спални, баня с тоалетна, отделна тоалетна, балкон. Отопление ТЕЦ. Изложение и/ю.
Съвременен жилищен комплекс от затворен тип с контролиран достъп, създаден да осигури спокойствие, сигурност и качествен начин на живот. Проектът се отличава с модерна визия, висок клас строителство и добре планирана среда, съчетаваща функционалност и удобство за ежедневието. Отоплението е предвидено на ТЕЦ. Жилищата ще бъдат с висок клас дограма с троен стъклопакет. Общите части са луксозно завършени с гранит, висок клас асансьор.
Сградата е на 8 етажа с РЗП-5 279 кв.м. върху които са разположени: 47 апартамента, паркоместа и гаражи.
Етапи на строителство:
АКТ 14 декември - 2026 г.
АКТ 15 ноември - 2027 г.
АКТ 16 декември- 2027 г.
Схеми на плащане:
Схеми на плащане:
30% на ПД; 30% на АКТ-14; 30% на АКТ-15; 10% на АКТ-16
20 %на ПД; 80% след АКТ16
20% на ПД; 50% на АКТ-14; 20% на АКТ 15; 10% на АКТ-16
80% на ПД; 20% на АКТ 16-отстъпка в цената.
100% на ПД отстъпка в цената.
Отлична локация за района, удобен транспорт: Метростанция Обеля на 5 минути. Трамвай 6, Автобуси 30,31,41,26 по бул. Ломско шосе .
Модерна жилищна сграда с окачена фасада и изпълнена с висококачествени материали, гарантиращи естетика, енергийна ефективност и дълготрайност.
Обеля-2 е бързоразвиващ се квартал с добре изградена инфраструктура. В близост до сградата има:
Детски градини: ДГ 82 Джани Родари ; ДГ 5 .
Училища: ЧОУ Дружба ; ЧПГ Дружба ; 140СУ Иван Богоров .
Медицински услуги: 30-ти ДКЦ, 16-та Стоматологична поликлиника, аптеки.
Магазини и услуги: Супермаркет Т Маркет , Хипермаркет БИЛА , банки, заведения, бензиностанции и др.
Спорт и почивка: Спортен център Кристал .
Обади се сега и цитирай този код 690182







