Имоти Премиер представя на Вашето внимание ЕКСЛУЗИВНО апартамент с три спални в бутикова жилищна сграда в кв. Бояна в един от най-престижните и зелени райони на София, с впечатляваща гледка към Витоша и усещане за пространство, светлина и спокойствие.Жилището се състои от просторна дневна с кухненски бокс, три спални, две санитарни помещения, килер и две тераси.
Съвременна архитектура с изчистени линии и висок клас изпълнение. Сградата ще бъде реализирана с окачена фасада, осигуряваща отлична топло- и шумоизолация, устойчивост и безупречна визия във времето.
Големите френски прозорци от пода до тавана разкриват панорама към планината и внасят изобилие от естествена светлина във всяко жилище.
Проектът е бутиков само 9 апартамента:
Просторни тристайни и четиристайни
Един впечатляващ петстаен мезонет с мащаб и характер
Всички жилища са с:
✔ големи площи
✔ правилни форми на помещенията
✔ функционални разпределения без загубени пространства
✔ панорамни гледки към Витоша
Комфортът е заложен във всеки детайл сградата разполага с асансьор, осигуряващ тишина и удобство на всички нива.
Предвидени са подземни и външни паркоместа- качеството започва още от достъпа до дома.
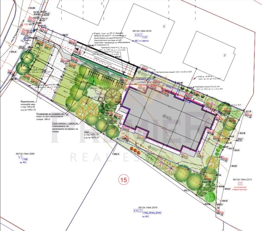
Парцелът е просторен и с отличен потенциал гарантира светлина, дистанция от съседни сгради и усещане за самостоятелност, което рядко се среща в района.
Зад проекта стои утвърден инвеститор с множество успешно реализирани сгради, сертификати за качество и доказана репутация. Разпознаваем от банките и предлагащ гъвкави схеми на плащане, което дава сигурност и предвидимост на купувачите.
Това не е просто нова сграда.
Това е адрес.
Престиж.
Инвестиция със стойност.
За повече информация и оглед моля позвънете на посочените телефони и цитирайте код 380882



