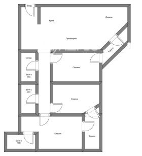
Многостаен апартамент със следното разпределение: дневна с кухня, три спални, три бани с тоалетна, мокро помещение, две тераси с гледка към Витоша. Възможност за закупуване на подземно паркомясто.
бул.'Черни връх', точно под скоростната отсечка, свързваща се с Околовръстен път, бърз и лесен достъп до централните пътни артерии, както с автомобил и автобус, така и с метро.
Модерен дизайн, стил и комфорт, функционалност и урбанистична визия, светли и просторни помещения и 360 градусови гледки в нова многофункционална сграда, клас А
- Безкомпромисно качествено ново строителство
- 360-градусови гледки към Витоша и София
- Високо качество и пряк достъп до бул. Черни Връх
- Удобен и лесен достъп до центъра на София и Околовръстен път
- Модерна архитектурна визия и функционални разпределения
- Енергоефективни и екологични материали и технологии
- В близост до Витоша и множество локации за отдих и забавление
Обади се сега и цитирай този код 569749







