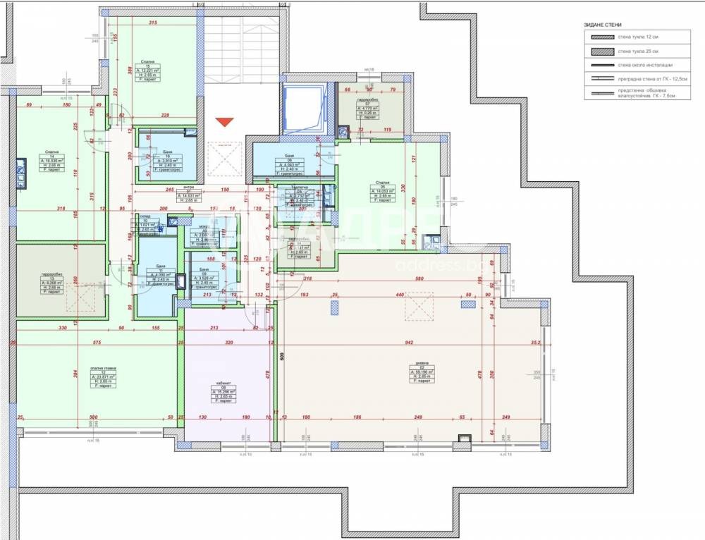
Представяме изключителен пентхаус, резултат от обединението на два просторни апартамента на последния етаж в луксозна сграда. Състоящ се от : Светла и функционална дневна с кухненски бокс, четири просторни спални, отделен кабинет идеален за работа от вкъщи или лична библиотека, четири бани и отделна тоалетна, три дрешника, мокро помещение и склад, ексклузивна покривна тераса, която обгръща целия апартамент, предоставяйки впечатляваща гледка и множество възможности за релакс и забавления на открито. Апартаментът заема целия 6-ти етаж, с индивидуален достъп на асансьора. Към апартамента има гараж за 4 автомобила, със ЗП 57 кв.м. на отделна цена.
Кварталът предлага отлична свързаност с центъра на града чрез бул. България , Околовръстен път и основни транспортни артерии. В непосредствена близост се намират Paradise Center, Mall Bulgaria, бизнес зоните по бул. България и Vitosha Business Park. Близостта до Витоша допълнително допринася за качеството на живот и възможностите за активен отдих.
Сградата се намира в напреднал етап на строителство пред Акт 15, с монолитна стоманобетонна скелетна конструкция. Външните и вътрешните стени ще са от висококачествени Wienerberger Porotherm тухли. Фасадата ще бъде с интегрирана топлоизолационна система, повишаваща енергийната ефективност. Апартаментите ще се предават на шпакловка и замазка, с блиндирани входни врати SOLID и изградено окабеляване за телевизия, интернет, телефон, звънчева и домофонна система. Предвидена е газова инсталация до тапа за индивидуално отопление. Общите части ще бъдат завършени с висококачествени материали гранит и гранитогрес, парапетите ще се изпълнят по архитектурен проект, а външното пространство ще бъде с изцяло изградена вертикална планировка, съгласно утвърден проект за паркоустройство и благоустройство.
Имотът е перфектен избор за взискателни клиенти, търсещи комфорт, престиж и качество, както и отлична дългосрочна инвестиция в район с постоянно нарастваща стойност. Изложение: югоизток - северозапад изключителна естествена светлина през целия ден. Последен етаж без съседи над жилището, максимална тишина и уединение. Покривна тераса рядко срещано предимство, идеална за градски лайфстайл на високо ниво. Правилни форми на помещенията лесно и елегантно интериорно решение. Панорамни гледки и усещане за простор. Пълно завършване с висок клас материали по желание на клиента.
Обади се сега и цитирай този код 681627







