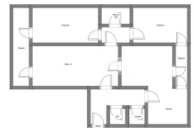
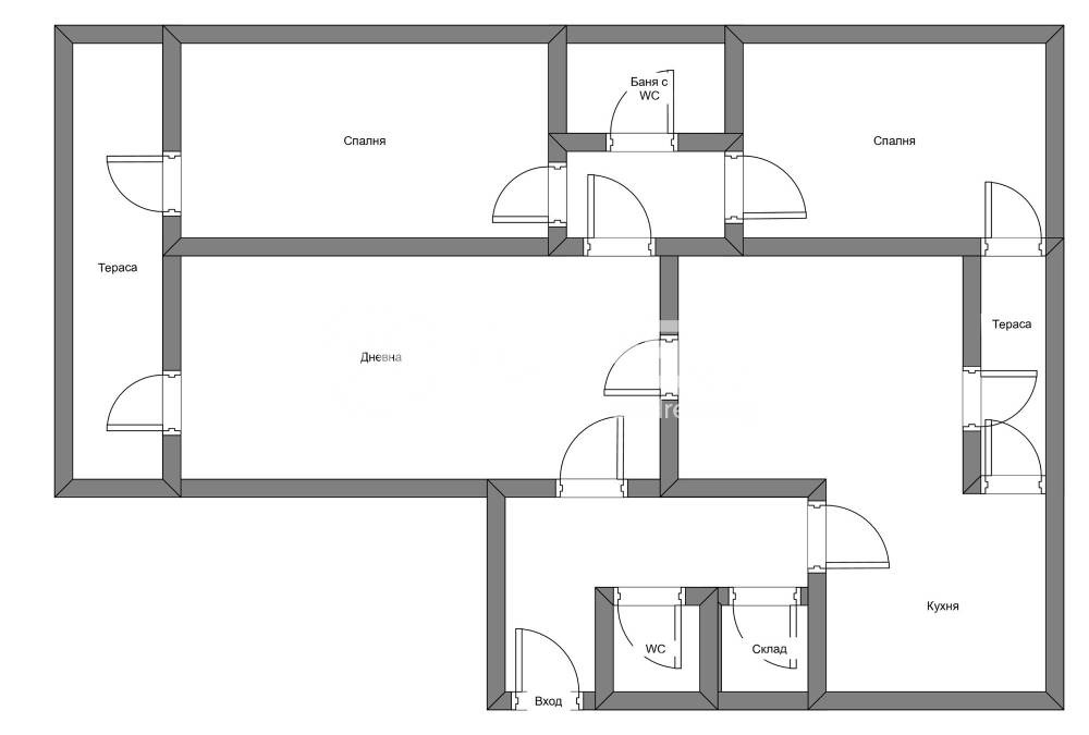
Четиристаен/многостаен, тухлен апартамент в кв. Мусагеница. Апартаментът е светъл и просторен, състои се от: коридор, хол, трапезария, кухня, две непреходни спални, баня с тоалетна, тоалетна за гости, килер/перално помещение и две тераси, едната много голяма и просторна.
Апартаментът е с чиста площ по НА - 97.34 кв.м, в която квадратура не са включени двете тераси, които са около 15 кв.м., мазе - 6.29 кв.м.
Апартаментът е с нова ПВЦ дограма, сменени хоризонтални и вертикални щрангове.
Имотът разполага с архитектурен план, съобразно който са възможни различни преустройства. Апартаментът се нуждае от основен ремонт, което предоставя отлична възможност за реализиране на индивидуален интериорен проект и повишаване на стойността му.
Подходящ е както за лично ползване, така и за инвестиция.
Има удобен достъп до обществен транспорт, магазини, училища, детски градини и паркове. Локацията е изключително комуникативна в близост до метростанция Мусагеница, университети, училища, магазини и зелени площи, с удобен достъп до основни пътни артерии.
Сградата е с ремонтиран покрив, сменена дограма във входа, който е с поддържани общи части, асансьор. ТЕЦ, домофон, сменена входна врата с чип достъп
- свободно паркиране около блока
- от терасата се открива хубава гледка към парк /бивш парк Мусагеница/.
- имотът е разположен на среден етаж, много топъл и слънчев, ниски консумативни разходи.
- добро изложение, осигуряващо естествена светлина: хол и едната спалня - югоизток, другите стаи - северозапад
- отличен потенциал за преустройство и модернизиране според вкуса на новите собственици.
Обади се сега и цитирай този код 680278







