Луксозен апартамент със самостоятелна СПА зона в идеалния център на Стара Загора
Фирма ЕФИР ЕООД предлага за продажба висок клас апартамент, разположен в престижната сграда на Хотел Ефир, ул. Хаджи Димитър Асенов 52 идеален център, с бърз и удобен достъп до всички ключови точки на града.
Имотът е напълно луксозно обзаведен, завършен и готов за незабавно ползване или отдаване под наем в премиум сегмента.
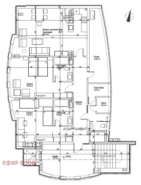
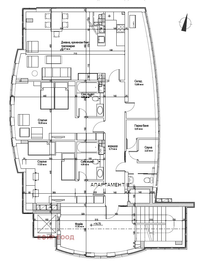
Разпределение и функционалност:
- Просторна дневна зона с кухня и трапезария
- Две самостоятелни спални, всяка със собствена баня и тоалетна
- Самостоятелна СПА зона с баня и тоалетна, включваща:
*парна баня
*сауна
*инфрачервена кабина
- Мокро помещение
- Остъклена тераса с вентилация и климатик
Оборудване и състояние:
- Чисто нова, напълно оборудвана кухня
- Изцяло нова климатична инсталация във всички помещения
- Нов бойлер
- Луксозни мебели и висок клас довършителни работи
- Отлична вентилация и комфорт през всички сезони
Площи:
- Чиста жилищна площ: 140 кв.м.
- Обща площ с общи части: 174,76 кв.м.
Сграда, етажност и достъп:
- Етаж 6 от 7
- Само по един апартамент на етаж: пълна самостоятелност и тишина
- Асансьор с контрол на достъпа до съответния етаж, осигуряващ високо ниво на сигурност
Статут и поддръжка:
- Статут на имота: апартамент
- Самостоятелни партиди за ток и вода
- Без фиксирани такси за поддръжка
*Разходите за почистване и осветление на общите части и поддръжка на асансьора се разпределят между обектите според квадратурата им, по стандартния модел на жилищна сграда





