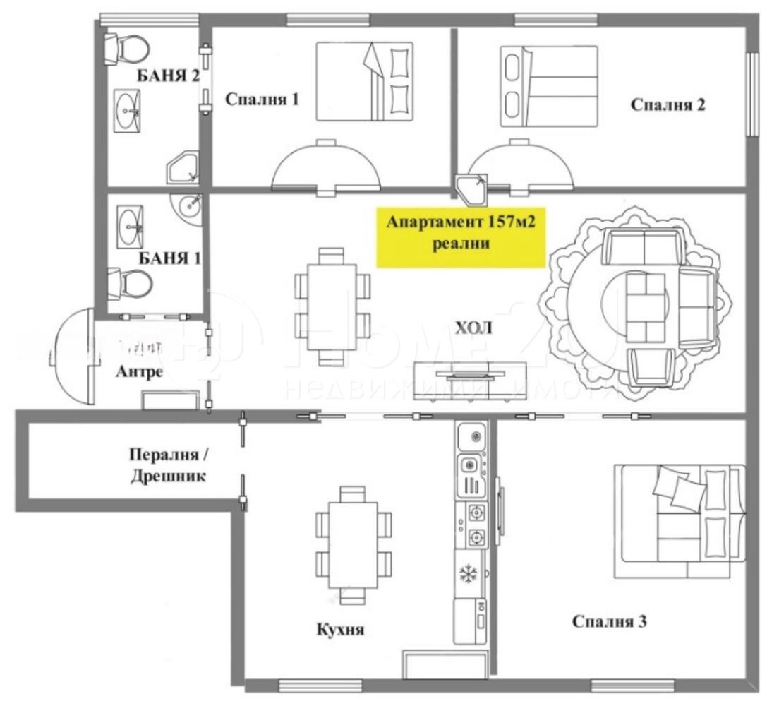
ТОП ЦЕНТЪР!!! ПРОСТОРЕН!!! ПЕТ ПОМЕЩЕНИЯ!!! Home2U Ви представя многостааен апартамент находящ се на ул. Княз Борис I в идеалния център на София.Жилището е разположено в тиха зона, в непосредствена близост до всички удобства на градския живот, магазини, ресторанти, културни и исторически забележителности на 350 м. от метростанция 'Сердика'. Апартаментът е разположен на първия етаж над магазини и се състои от входно антре, голям вестибюл, четири просторни спални, кухня, две бани с тоалетни, мокро помещение с дрешник и три балкона. Жилището е с високи тавани 3,30 метра, настилка дюшеме с ламинатен паркет, климатици във всички помещения, фасадата е с пръскана мазилка и изолация 10см. Имотът е подходящ и за офис, кантора, учебен център и други дейности.
Ако желаете да закупите този имот, обадете се СЕГА и цитирайте следния код: 139682







