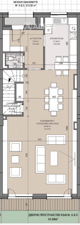
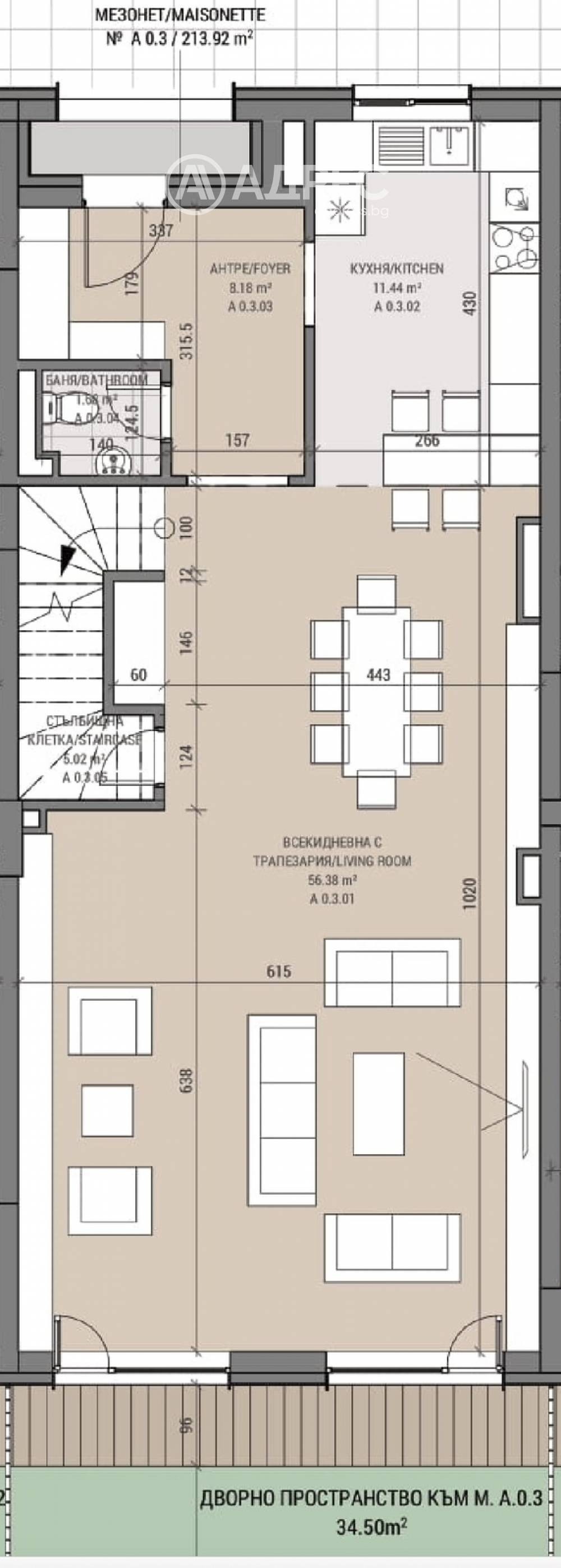
Разпределение на имота:
Първо ниво:
Антре
Баня с тоалетна
Просторна дневна с кухненски бокс обща площ 68 кв.м, с излаз към:
Прилежащ самостоятелен двор
Второ ниво:
Коридор
Четири самостоятелни спални
Три санитарни възела
Дрешник
Два балкона
Общата площ на имота предоставя удобство, светлина и възможности за обособяване на работни кътове, гардеробни и множество други интериорни решения.
Имотът се намира в един от най-перспективните райони на София кв. Овча купел , в непосредствена близост до ключови точки:
3 минути пешеходно разстояние до Нов български университет
6 минути до метростанция Мизия
В близост до големи хранителни магазини, аптеки, медицински центрове, ресторанти и училища
Удобен достъп до бул. Овча купел , бул. Президент Линкълн и Околовръстен път
Тих и спокоен квартал, съчетаващ градски комфорт и близост до природата, с отлична свързаност до всички части на София.
Сградата е нова, съвременна, с модерна архитектура и висококачествено строителство.
Отопление на газ с изградена инсталация
Контролиран достъп, асансьор, висок клас дограма и топлоизолация
Част от мащабен комплекс с обща визия и инфраструктура
Възможност за покупка на гараж
Без комисиона за купувача
Възможност за довършване до ключ от инвеститора.
Обади се сега и цитирай този код 633949
Виж всички обяви в address.bazar.bg или тук







