ЕКСКЛУЗИВНО!
🏡 Просторен многостаен апартамент с двор и гараж в Панчарево | Акт 15 | обща площ 147.93 кв.м + 237.55 кв.м двор
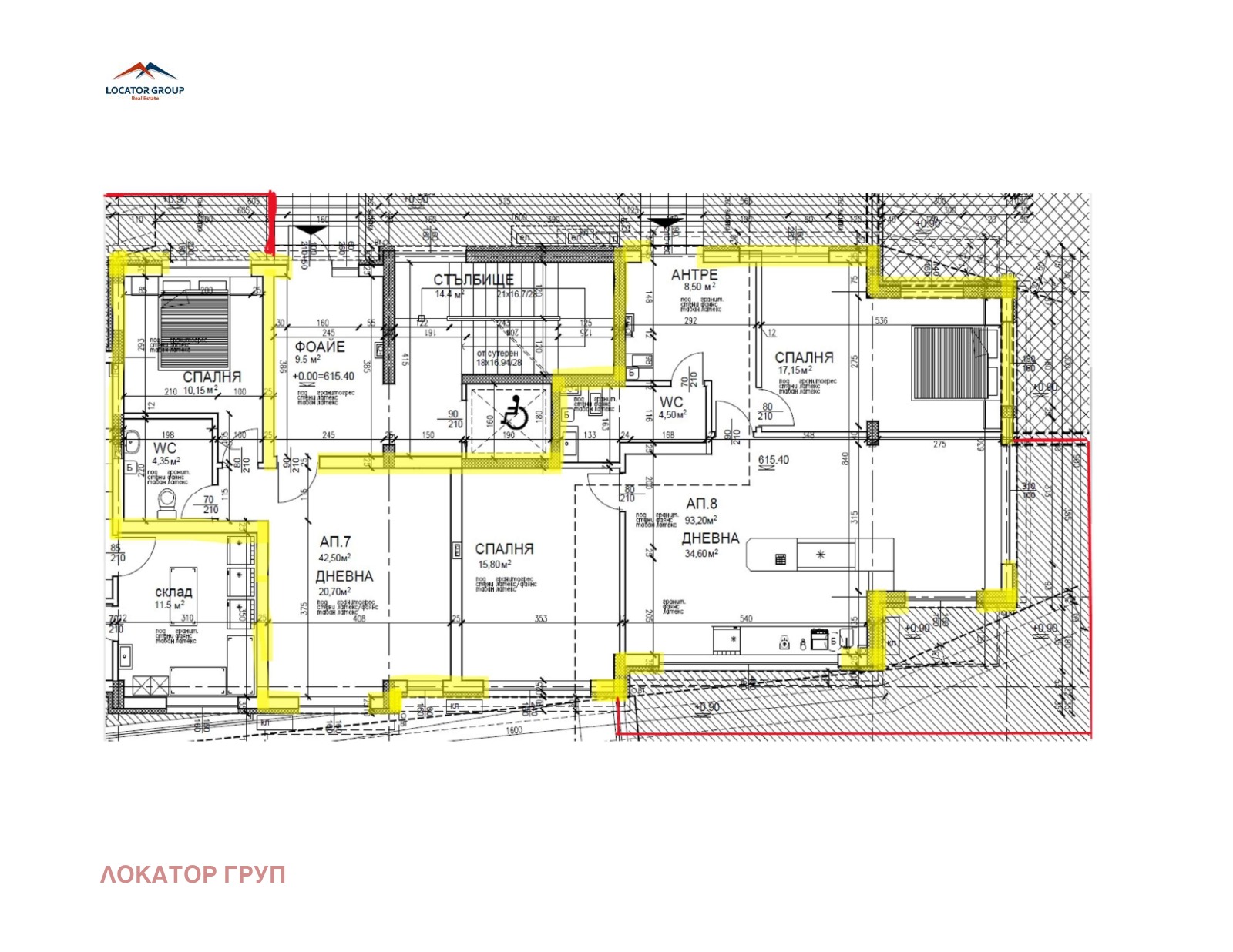
ЛОКАТОР ГРУП предлага за продажба просторен многостаен апартамент, разположен в нова тухлена сграда с Акт 15 от 2025 г. в престижния район Панчарево. Имотът се намира на партерен етаж от четири, с високи тавани, оптимално разпределение и собствен озеленен двор от 207 кв.м.
📏 Основни характеристики:
Застроена площ: 147.93 кв.м
Собствен двор: 237.55 кв.м
Мазе : включено в цената
Две външни паркоместа и подземен гараж - 62 кв.м: с допълнително заплащане, при договорка.
Степен на завършеност: шпакловка и замазка
Отопление: термопомпа и изцяло изградена система за подово отопление
Година на строителство: 2025 г. (тухла)
🏠 Разпределение:
Входно антре, коридор
Просторна дневна с трапезария и кухня
Родителска спалня с дрешник и самостоятелна баня с тоалетна
Две детски спални
Кабинет
Втора баня с тоалетна
Сервизно помещение
Апартаментът се предлага с изготвен проект за интериорен дизайн, което позволява на бъдещите собственици да продължат реализацията по вече разработена концепция.
🧱 Допълнителна информация:
Имотът е със статут на апартамент и представлява обединение на два самостоятелни обекта двустаен и тристаен апартамент.
Възможности за:
Отделна продажба на всеки от апартаментите
Самостоятелна продажба на паркоместата и гаража
📍 Локация:
Имотът се намира на втора линия от Панчаревското езеро, на асфалтирана улица с целогодишен достъп.
В непосредствена близост има:
детска градина и училище
спирка на градски транспорт
магазини и ежедневни услуги
Районът е тих, зелен и поддържан, с улично осветление, снегопочистване и редовно сметоизвозване.
Панчарево е известно с чистия си въздух, мек микроклимат и отлична връзка с града, което го прави едно от най-предпочитаните места за живеене край София.
✨ Предимства на имота:
Малка кооперация, само със седем апартамента
и изключително малък процент общи части.
Ново строителство с Акт 15
Просторно жилище с голям частен двор
Високи тавани и отлична осветеност
Гараж и две паркоместа включени в цената
Отопление с термопомпа и положена инсталация за подово отопление
Интериорен проект и готовност за довършване по концепция
📞 Свържете се с нас за повече информация, агенцията работи всеки ден, огледи с предварителна уговорка!
0882 987 989
Биляна Алексиева
[email protected]
0888 077 060
Миглена Каменова
[email protected]







