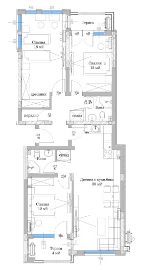
Оферта 67968: ТОП ОФЕРТА !!! Предлагаме Ви функционален Многостаен апартамент с функционално разпределение в един от най-иновативните ни жилищни комплекси със собствен стил, изчистена и модерна визия, проектиран с нисък процент общи части, така че да създаде максимален комфорт и уют за живеене. Проектът предвижда комплексно застрояване, просторни и панорамни жилища, голям вътрешен двор с оформен детски кът и зелени зони за релакс и почивка. Паркирането е решено с Партерни и Подземни гаражи и голям избор на външни Паркоместа. Жилището се състои от слънчева югоизточна дневна - 30.00 кв.м. с трапезария и кухненски бокс, три самостоятелни спални, като родителската стая разполага със собствена баня с тоалетна и дрешник, втора баня с тоалетна обслужва двете детски стаи, перално помещение ,широко входно антре с обособен склад и две тераси. Сградата привлича вниманието със своята локация, разположена в един от най-желаните и бързоразвиващи се квартали в Близост до гребна База и всички основни комуникации. Изпълнението ще се осъществява с висококачествени материали и съвременни технологии, по европейски стандарт, шесткамерна PVC дограма троен стъклопакет, блиндирана входна врата с 4-странно заключване, сензорно осветление, хидравлични асансьори с огледална кабина !!! Проектирането е съобразено така, че да създаде максимален комфорт и функционалност, като първия акцент са елегантните общи части, широки входни антрета с красив дизайн, които да носи удоволствие. Предвидена е звукоизлолация по пода за максимален комфорт и ограничаване на въздействието на шума върху обитателите на сградата. Свободни външни паркоместа на цени от 10 000 евро и опция за закупуване на Партерен или Подземен Гараж. Гъвкави схеми на разсрочено плащане в рамките на строителството, както и съдействие за банково кредитиране с изключително изгодни условия за клиенти на агенция Кондор.
ВИЖТЕ ОЩЕ ИЗГОДНИ ОФЕРТИ НА https://www.kondorimoti.com/ С ЕЖЕДНЕВНА АКТУАЛИЗАЦИЯ!







