БИЛДИНГ БОКС предлага за продажба апартамент в един от най-предпочитаните комуникативни и същевременно зелени квартали на София - Белите Брези!
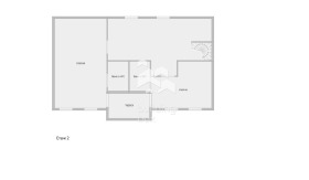
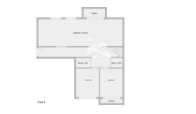
Имотът е на две нива: първото е със застроена площ от 119,80 кв.м. и се състои от антре, просторна дневна с кухненски бокс и тераса, 2 спални, 2 бани и втора тераса, второто ниво е със застроена площ 88,10 кв м. като се състои от предверие, 2 спални всяка със отделна баня, тераса с прекрасна гледка към Витоша. Квадратурата на двете нива не включва и допълнителни 56,6 кв.м с височина под 1,5 м. Имотът е завършен с настилки, бани и парапет на стълбите, с чисто нова дограма SALAMANDER.
Изложението е югозапад и изток.
Отоплението е на ТЕЦ.
Просторен и изключително функционален, подготвен за най-приятната част от довършителните работи, а именно обзавеждането.
Намира се на седми и осми (последен) етаж в тухлена сграда с разрешение за ползване от 2012г. Общите части са в много добро състояние.
Сградата има асансьор.
Към апартамента може да се закупи и гараж в сутеренното ниво.
Района е предпочитан, заради уредеността си от гледна точка на транспорт, училища и детски градини, магазини, заведения за хранене, пазар и големи търговски вериги.
БИЛДИНГ БОКС предоставя безплатна консултация и съдействие при финансиране на избрания от Вас имот.
Оферта 25017







