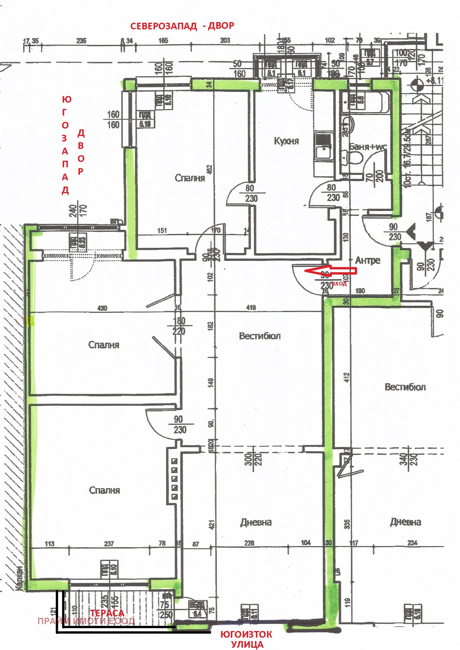
Прайм имоти има удоволствието и привилегията да представи на вниманието на заинтересованите един изключителен имот с топ локация в София, в района на Докторски паметник, недалеч от емблематични сгради като СУ, Национална библиотека, БНТ и много други локация, която всеки иска да обитава. Тихо и спокойно място и в същия момент в близост и с бърза връзка към ключови точки на столицата, близо до метро спирки СУ и Орлов мост, няколко парка за разходки, спорт и отдих на открито. Кварталът е известен със своя аристократичен дух и уникална атмосфера, съхранили духа на Стара София. Сградата е строена 1934 г монолитно стоманобетоново строителство. Чиста застроена площ, без общи части 144.66 кв.м прилагам разпределение, които включват: дневна с вестибюл с действаща камина и тераса, три светли и големи спални, кухня светла, баня със санитарен възел с прозорец. Към апартамента има мазе 10 кв.м и таван 16 кв.м. Светла височина под-таван 2.95м. Апартаментът е с петкамерна PVC дограма с троен стъклопакет, среден и много топъл, което го прави изключително икономичен през зимните месеци, защото не се нуждае от отопление. Сградата е с централно отопление. Подменени са ел. инсталацията и водопроводните тръби в апартамента. Имотът е на трети над партерен етаж, който не е последен отгоре има един нормален етаж и след това тавани, без асансьор. Сграда е ремонтирана и топлоизолирана през 2016 г. по проект за енергийна ефективност на ЕС. Извършен е цялостен ремонт на общите части включително покрив, стълбище, което е със сензорно осветление, подменена дограма в общите части в цялата сграда, включително мазетата и тавани с петкамерна PVC дограма с двоен стъклопакет, за който ремонт сградата е получила технически паспорт за енергийна ефективност. Апартаментът ще бъде освободен и предаден във владеене на новия собственик до един месец след получаване на пълното заплащане на продажната му цена. Паркиране в синя зона. В момента апартаментът е с наематели и огледи ще се правят в удобно за тях време.
Имотът е част от порт фолиото на фирмата! Видеото и снимките са предмет на авторско право. Копирането и разпространението им, без изричното писмено съгласие на автора, се наказва съгласно закона.







