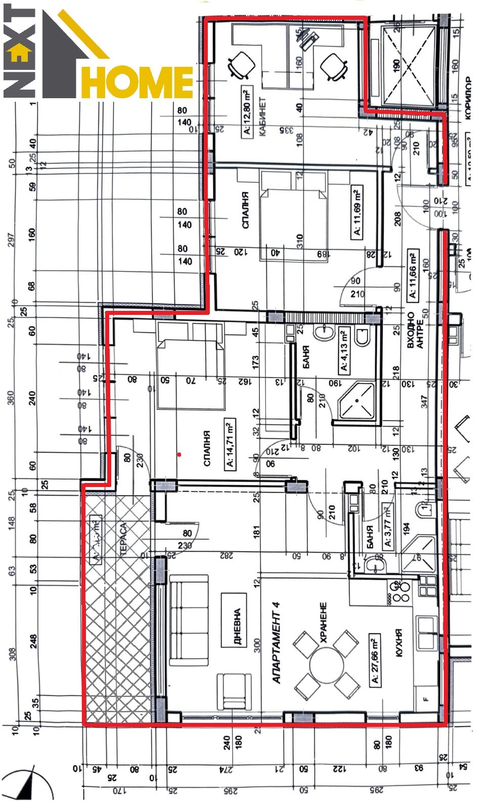
📐 Жилището е разположено на пети етаж и е със следното разпределение:
🛋️ Просторен дневен тракт с кухненски бокс и трапезария, с френски тип прозорци разкриващи прекрасна панорама към реката и 'Родопите'
🛏️ Три отделни непреходни спални
🛁 Две санитарни възела
🌅 Тераса с красива гледка
Състояние:
Жилището се предлага с финно шпакловани стени (готови за нанасяне на латекс), окачени тавани с вътрешна топлоизолация, прекарани тръби за подово отопление, монтирана алуминиева дограма с термомост и троен стъклопакет
Предимства:
✅ Ново строителство, изградено от доказан строител, положени материали от висок клас
✅ Функционално разпределение и светли помещения, панорамен изглед
✅ Отлична местоположение близо до центъра, но и до природата 🌳
✅ Гараж с топла връзка към сградата 🚗🔥
✅ Възможност за закупуване на допълнителни паркоместа
Имотът е чудесен избор както за голямо семейство 👨👩👧👦, така и за инвестиция 💼.
Виж всички обяви в nexthome1.bazar.bg или тук
        
       
         
         
         
         
         
         
         
         
         
         
         
         
         
         
         
         
         
             
             
             
             
             
             
             
             
             
             
             
             
             
             
             
             
            






