📌 Референтен номер: 2066508
❗ Революшън Естейт представя многостаен апартамент в кв. Горубляне.❗
🔷 Цената на имота е БЕЗ включено ДДС.
🔷 Етаж: 3-ти от 5-ти.
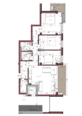
🔷 Площ: 134.2 кв.м.
🔷 Изложение: Изток/Юг.
🔷 Разпределение: входно антре, дневна с кухня, три спални, две бани с тоалетни, склад, две тераси.
🔷 Отопление: Газ.
🔷 Строителство: Тухла от 2023г.
🔷 Водно подово отопление.
🔷 Тръбна разводка за климатици.
🔷 Цветен видео домофон.
🔷 Дограма с троен стъклопакет.
🔷 Шум изолация към под.
🔷 Топлоизолационна система.
🔷 Подземно паркомясто - НЕ е включено в цената.
🔷 Вътрешен озеленен двор и контрол на достъпа.
Имотът се намира в спокоен и предпочитан район на София. В близост има магазини, заведения и аптеки, както и удобен достъп до градски транспорт. Районът предлага лесна връзка с Околовръстен път и основни булеварди, което осигурява бързо придвижване до центъра и други части на града.
В близост до имота ще намерите:
- Автобусна спирка.
- Хипермаркети.
- 82 ОУ 'Васил Априлов'.
📞 Информация за горепосочения имот, може да получите чрез формата на запитване или чрез директна връзка с нас на посочения телефон.







