Представяме просторен многостаен апартамент с характер и история - ул. Княз Борис I
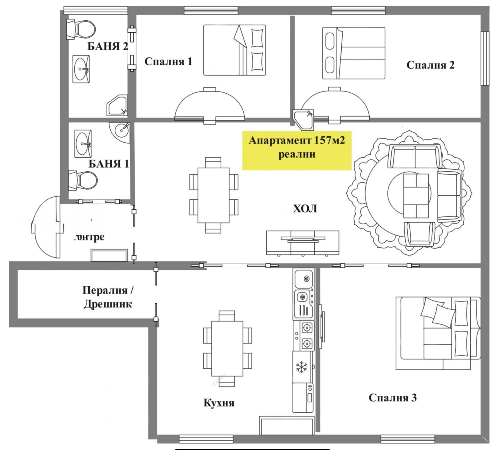
С площ от 154 кв.м (реални 157 кв.м), апартамента е разположен на първи етаж в масивна тухлена сграда от 1934 г., на тиха улица между ул. Цар Симеон и ул. Екзарх Йосиф, в непосредствена близост до Женския пазар, който днес се утвърждава като нова културна и социална сцена на столицата.
📍 Локация:
Имотът се намира в динамично развиващ се район с артистичен дух в близост до хотели, ресторанти, арт галерии, търговски обекти и градски транспорт, включително метростанции. Мястото привлича млади хора, творци, предприемачи и ценители на централната градска среда.
🏢 Сграда:
Масивно строителство (тухла/железобетон)
Фасада с пръскана мазилка и 10 см външна изолация
Скатен покрив
Самостоятелен вход и добре поддържан вътрешен двор-градина
Подходящ за живеене, отдаване под наем, офис, адвокатска или нотариална кантора
🏠 Разпределение:
Просторно входно антре
Кухня с излаз към тераса към ул. Княз Борис I
Светъл хол с високи тавани (330 см)
Четири спални, три от които с тераси две с изглед към вътрешен двор
Две бани с тоалетна
Перално помещение с вграден дрешник
Зимнично помещение 11.09 кв.м
🌿 Допълнителни характеристики:
Подови настилки: дюшеме, покрито с ламиниран паркет
Климатици в хола и всяка от спалните
Добра естествена светлина през целия ден
Уютен вътрешен двор, подходящ за отдих или озеленяване
В близост до имота ще намерите:
- Училище: 32 СУИЧЕ 'Св. Климент Охридски
- Училище: ROBOTIKA - роботика за ученици
- Банка: УниКредит Булбанк
- Болница: Медицински център 'Свети Пантелеймон'
- Метростанция: СЕРДИКА
💡 Имот с огромен потенциал както за семейно жилище с дух, така и за инвестиция с престижна централна локация.
За повече информация и за оглед - свържете се с нас:
0896100806
0893375333
0894703070
Финансиране:
Предлагаме и безплатно професионално съдействие за жилищен кредит.
Виж всички обяви в sofiaproperty.bazar.bg или тук







