✨ Просторен четиристаен апартамент, подходящ за семейства уют, функционалност и тиха локация в кв. Христо Смирненски, ул.Рая
💰 Удобна схема на разплащане: 30% на предварителен и70% на Акт 16
🏡 Сграда, проектирана с мисъл за комфортен и качествен начин на живот изчистена архитектура, прецизно изпълнение и висок клас строителни материали, които осигуряват надеждност и уют за години напред
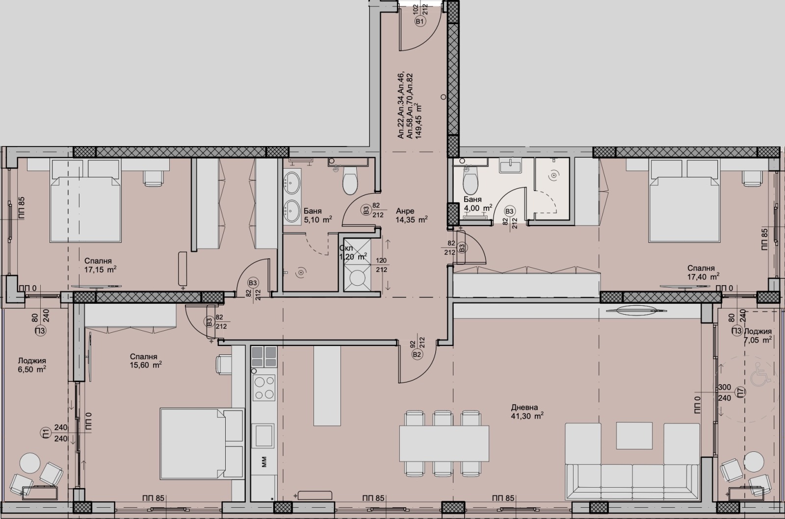
Апартаментът е с изложение югозапад, което гарантира светлина през целия ден, и предлага функционално разпределение, съобразено с нуждите на по-големи домакинства:
входно антре
просторна дневна с кухненски бокс
три самостоятелни спални
две бани с тоалетни
две тераси идеални за сутрешно кафе или вечерна почивка
складово помещение
🌞 Пространството е балансирано и удобно както за ежедневен ритъм, така и за уютни семейни моменти у дома.
🌿 Локацията на ул.Рая , в един от най-зелените и спокойни квартали на града, предоставя отлична среда за отглеждане на деца с лесен достъп до училища, паркове, магазини и градски транспорт.
📅 Срок на завършване: 36 месеца
🚗 Възможност за закупуване на паркоместа и гаражи
🏦 Подходящ за банково финансиране безплатно съдействие при нужда
✅ Директна продажба от инвеститор без комисиона
Оферта: 6516
Виж всички обяви в hhproperties.bazar.bg или тук







