ПЕНТХАУС !!! ОТЛИЧНА ЛОКАЦИЯ !!! СТАРТИРАЛО СТРОИТЕЛСТВО !!! ЛУКСОЗНА СГРАДА !!!
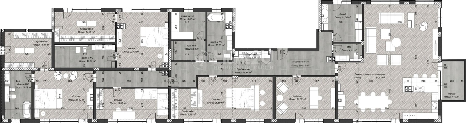
Представяме на Вашето внимание пентхаус на последния етаж на нова жилищна сграда без аналог на пазара в Центъра на столицата. Апартаментът ще разполага със следното функционално разпределение:
входно антре, хол + кухненски бокс 81.42кв.м., четири спални, три гардеробни, Сауна и Склад, три бани + тоалетни, отделна тоалетна, панорамна тераса 370.31кв.м.
Фасадата на сградата е съвременна и модерна с елегантни декоративни елементи, които подчертават обемите. Конструкцията е монолитна стоманобетонна с външни зидове от 25 см. тухли и 10 см. топлоизолация. Терасите са предвидени с ажурни и плътни парапети с височина от мин. 120 см. от готов под. А създаването на общо пространство в градската среда е предизвикателство за осигуряването му по функционален път, което допълва уютната обстановка и качеството на живот. Предвидена е богато озеленена, общодостъпна покривна тераса.
За повече информация, обадете се и цитирайте код 128709







