Апартамент за продажба, кв. Чайка, бл.68, ет.2, гр. Варна, цена 295 000 Евро
Предлагаме Ви за продажба многостаен, тухлен апартамент, находящ се в кв. Чайка, бл.68, ет.2, гр. Варна.
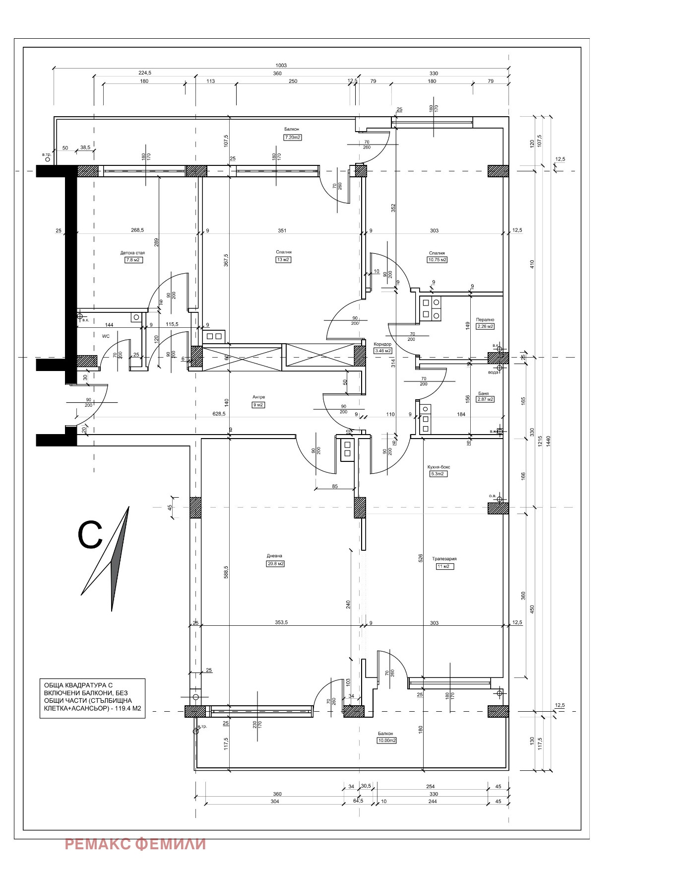
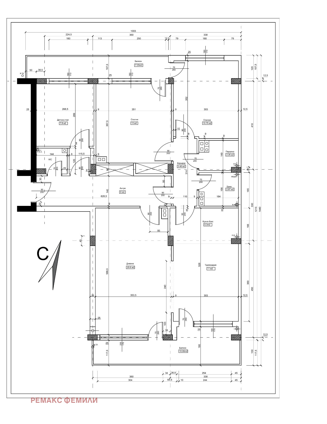
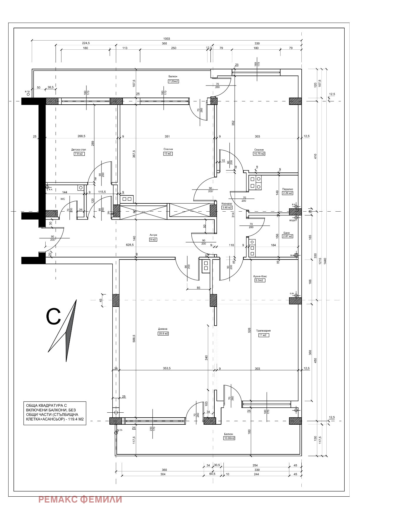
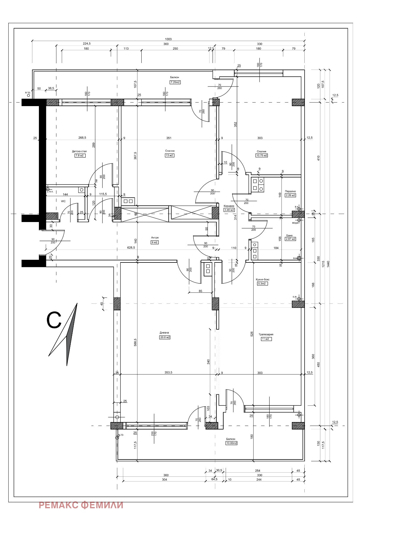
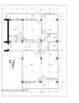
На чиста жилищна площ от 110,43 кв.м. са разположени както следва: коридор, голяма кухня, голяма всекидневна, три спални, три мокри помещения, и две тераси. Апартамента е разположен на втори, реален жилищен етаж. Изцяло ориентиран на юг с частична панорама към Черно море. От всяка една от петте стаи на апартамента има излаз към тераса.
Жилището е напълно покрито, вътрешно, изключително светло и слънчево. Към апартамента има прилежащо избено помещение с площ от 12,11 кв.м.
Апартамента се нуждае от ремонт.
Тухлената сграда в която е разположено жилище е снабдена с асансьор.
Квартал Чайка е популярен и предпочитан за целогодишно живеене поради непосредствената си близост до Морската градина. Добрата инфраструктура, запазените широки алеи и тротоари.
Телефон: 0899/108 415







