- Изключителна локация: Само на 5 минути пеша от Капана, пешеходната градска улица и Старинен Пловдив!
-Иновативна архитектура в Средиземноморски стил: Апартаментите са проектирани с внимание към детайла, осигурявайки уют и комфорт. - Висококачествени материали: Използвани са само най-добрите строителни и довършителни материали, немски безшумен асансьор, луксозно отвършени общи части ,5 камерна всесезонна дограма, парапети от масивно ковано желязо и мн.др.екстри осигуряващи дълготрайност и стил.
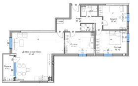
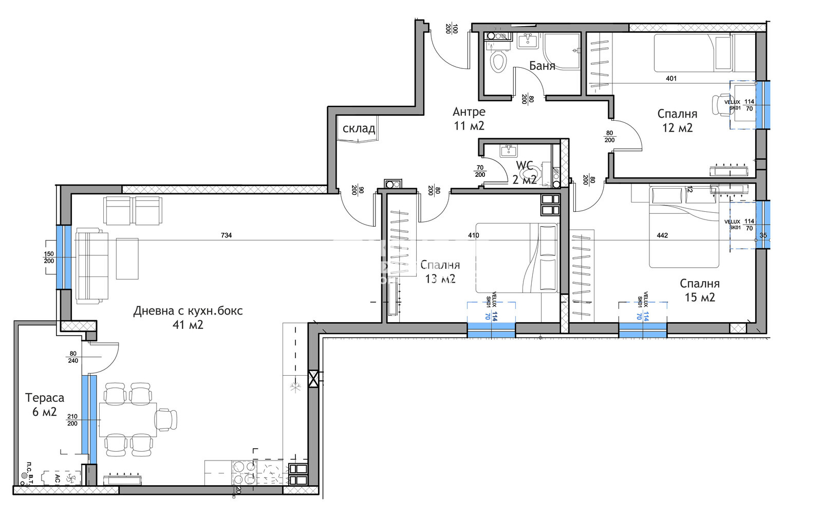
- Разпределение: Просторен многостаен с ОТВОРЕНА ГЛЕДКА със светла ЮЖНА дневна с трапезария и кухненска част- 44 кв.м, три хубави спални, широк коридор, баня с тоалетна, втора тоалетна и тераса към дневната.
- Паркирането е решено на две нива: Възможност за закупуване на паркоместа ,единични и двойни гаражи.
-Начин на плащане: Разсрочено плащане в рамките на строителството съобразено с възможностите на клиента. Не пропускайте възможността да живеете в апартамент, който съчетава удобството на градския живот с уюта на дом!ВИЖТЕ ОЩЕ ИЗГОДНИ ОФЕРТИ НА https://www.kondorimoti.com/ С ЕЖЕДНЕВНА АКТУАЛИЗАЦИЯ!
Виж всички обяви в kondor.bazar.bg или тук







