Unique Estates представя на Вашето внимание просторен многостаен апартамент за продажба в новострояща се сграда, разположена в непосредствена близост до ул. Черковна .
Бутиковият жилищен проект се намира в централната част на София и съчетава елегантна архитектура с висока функционалност, създавайки отлични условия за съвременен градски начин на живот. Сградата разполага с образователен център и подземни паркоместа на две нива.
Проектът се отличава със стилна окачена фасада от Laminam и алуминиева дограма Sch?co, които осигуряват баланс между естетика и енергийна ефективност. Височината на таваните от 3,20 м допринася за усещане за простор, светлина и комфорт във всяко жилище. Отоплението е предвидено чрез ТЕЦ, гарантиращ удобство и ефективност за бъдещите обитатели.
Апартаментите са проектирани с внимание към детайла, като големите прозорци осигуряват изобилие от естествена светлина, а висококачествените материали и съвременните технологии създават усещане за премиум жилищна среда.
Модерната визия на сградата се вписва хармонично в историческата среда на района, като едновременно с това му придава съвременно излъчване и ново архитектурно присъствие, без да нарушава неговата идентичност.
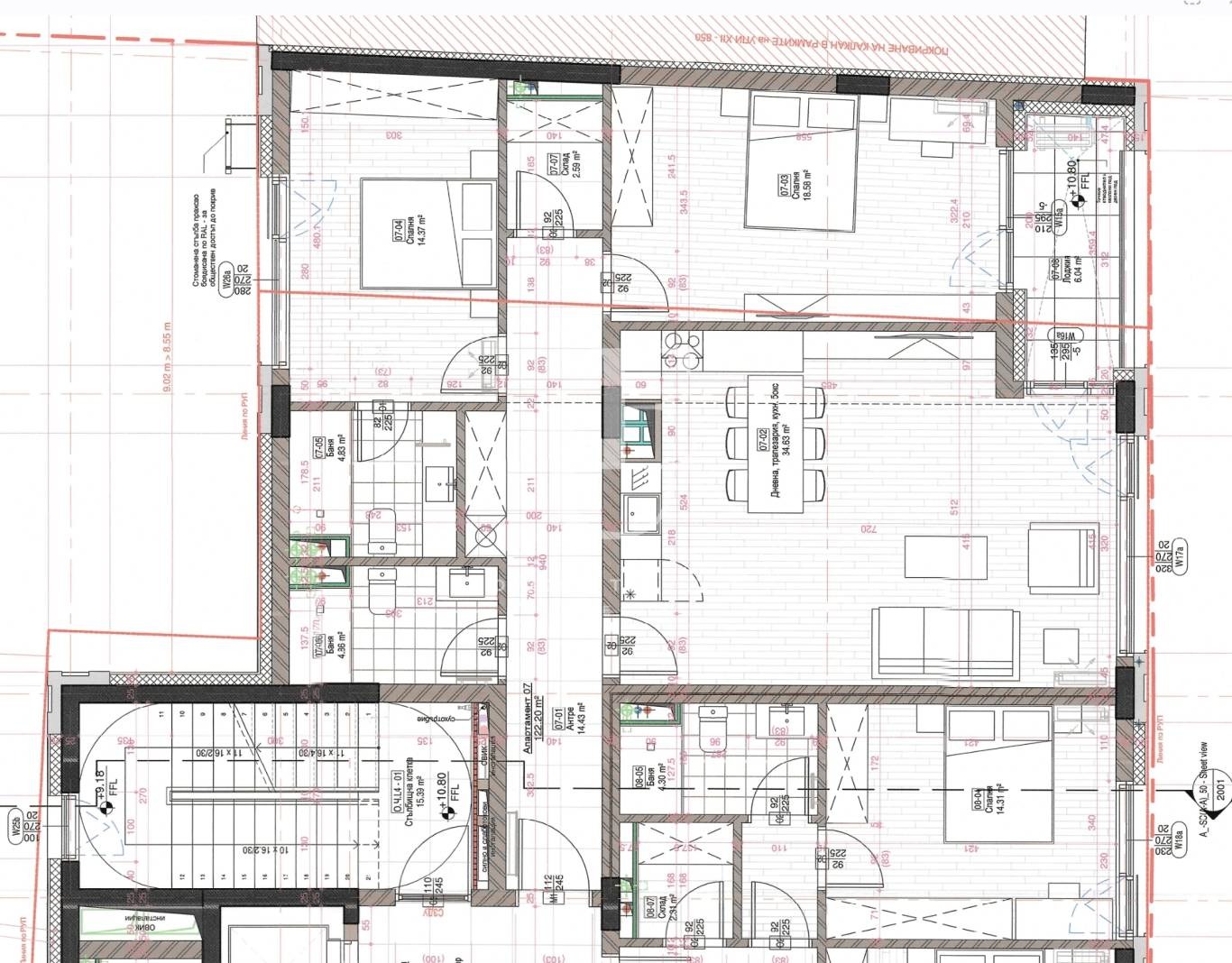
Предлаганият имот е с обща площ от 295 кв.м. и включва просторна дневна с кухненски бокс, четири спални, три бани, склад и тераса.
Очакван срок за завършване: 2027 г.
Разпределението на апартамента включва просторна дневна с кухненски бокс, четири спални, три бани, склад и тераса Цената е без включен ДДС. Ref. ID:25287







